A Semi-Transparent Box Villa

A Semi-Transparent Box Villa

A Semi-Transparent Box Villa

A Semi-Transparent Box Villa

A Semi-Transparent Box Villa

A Semi-Transparent Box Villa

A Semi-Transparent Box Villa

A Semi-Transparent Box Villa

A Semi-Transparent Box Villa

A Semi-Transparent Box Villa

A Semi-Transparent Box Villa

A Semi-Transparent Box Villa

Location: Qeshm Island , Iran

Client: Mr Hariri

Material: Brick, Cement & Wood

Design date: 2025

Site area: 1200m2

Built area: 385m2

Principle Architects: Soroush Roghanian, Elahe Mousavi

Design Team: Poyan Souki, Rozhin Poorzangene, Helia Mahdavi

CG Artist: Mahmoud Elmi

Graphic: Sara Dadashpour

Construction: Zima Construction Group

Story:

Text provided by the architects:

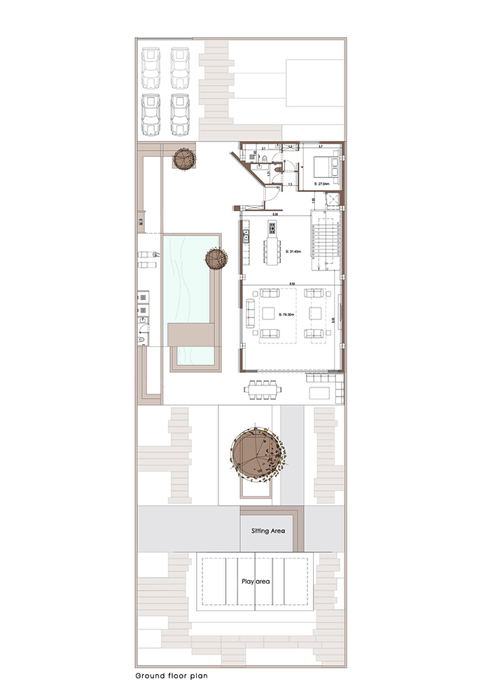
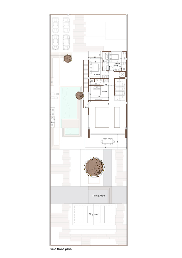
Villa No. 38 is located on Qeshm Island within a coastal residential complex. The site covers an area of 1,200 square meters, on which a two-story building with a footprint of 200 square meters had already been constructed. According to the regulations of the complex and the client’s requirements, increasing the building’s footprint or altering its structural framework was not permitted.

Therefore, in the design process, we considered the existing box-shaped two-story volume as a fixed element and enveloped it with a semi-transparent brick shell. This shell extends across the roof and floor levels aligned with it, opens up in certain areas to form terraces and openings, and in some spaces becomes movable depending on the function.

In contrast to the intense sunlight of Qeshm, this brick shell plays a crucial role in providing thermal comfort inside the building. Furthermore, after arranging the outdoor spaces, the shell extended into the landscape, creating a semi-transparent roof over the pool service and parking areas.

 

Honorable Mention of the 3rd Biennial Villa Award 2025 - Unbuilt Category with participant code VA-0325