AC Villa

©Fernando Alda

AC Villa

©Fernando Alda

AC Villa

©Fernando Alda

AC Villa

©Fernando Alda

AC Villa

©Fernando Alda

AC Villa

©Fernando Alda

AC Villa

©Fernando Alda

AC Villa

©Fernando Alda

AC Villa

©Fernando Alda

AC Villa

©Fernando Alda

AC Villa

©Fernando Alda

AC Villa

©Fernando Alda

AC Villa

©Fernando Alda

AC Villa

©Fernando Alda

AC Villa

©Fernando Alda

AC Villa

©Fernando Alda

AC Villa

©Fernando Alda

AC Villa

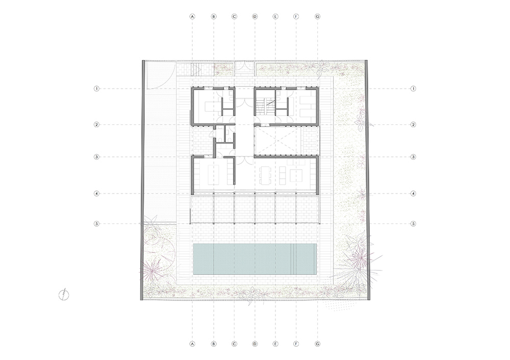
First Floor Plan

AC Villa

Second Floor Plan

AC Villa

AC Villa

AC Villa

AC Villa

Location: Málaga, Spain

Material: Brick

Completion date: 2023

Architects: Marina Uno Architects, Adolfo de la Torre Prieto, Juan Manuel Sánchez La Chica

Studio: Marina Uno Architects

Collaborators: Luis áñez García

Structure: Antonio Sánchez Garrid

Installations: Miguel Lacomba Arias

Photographer : Fernando Alda

Story:

Text provided by the architect:

 

The AC Villa is located in the recent extension to the north of the well-known Limonar neighborhood in Málaga, on a perfectly flat plot, with a square plan and facing south.

The villa is organized through a system of parallel bands in a north-south arrangement and they are crossed by a circulation axis that connects the different parts of the program.

Firstly, access appears as a path through a deep void that pierces the piece of the bedrooms, which builds the street front and develops on two levels.

Secondly, the hallway is arranged, it is open to a patio that connects the three levels of the villa and introduces light into the basement.

Finally, the kitchen and living room are located in the southern area of the villa, they are completely open to the garden and they are shaded by a pergola that builds the porch: the main space of the building.

Following the principles of Mediterranean architecture, the villa is designed looking for shade: The openings are protected from direct sun with shutters that allow cross ventilation, the patio generates shade and coolness and the pergola protects the large openings in the living room and kitchen from direct radiation. Furthermore, the walls are built with a brick structure based on pilasters that shade the facades of the villa and everything is painted white in order to reduce the absorption of solar radiation.

Talking about materiality, the villa is built with thin reinforced concrete slabs supported on manual brick walls and a thin steel structure that is exposed in front of the garden. Special attention is paid to what you can touch, for that reason, the carpentry is made with tropical woods, the pavements are made with limestone and the walls are painted with lime.