Arrayed Villa

© Avneesh Kumar

Arrayed Villa

© Avneesh Kumar

Arrayed Villa

© Avneesh Kumar

Arrayed Villa

© Avneesh Kumar

Arrayed Villa

© Avneesh Kumar

Arrayed Villa

© Avneesh Kumar

Arrayed Villa

© Avneesh Kumar

Arrayed Villa

© Avneesh Kumar

Arrayed Villa

© Avneesh Kumar

Arrayed Villa

© Avneesh Kumar

Arrayed Villa

© Avneesh Kumar

Arrayed Villa

© Avneesh Kumar

Arrayed Villa

© Avneesh Kumar

Arrayed Villa

© Avneesh Kumar

Arrayed Villa

© Avneesh Kumar

Arrayed Villa

© Avneesh Kumar

Arrayed Villa

© Avneesh Kumar

Arrayed Villa

© Avneesh Kumar

Arrayed Villa

© Avneesh Kumar

Arrayed Villa

© Avneesh Kumar

Arrayed Villa

© Avneesh Kumar

Arrayed Villa

© Avneesh Kumar

Arrayed Villa

Arrayed Villa

Arrayed Villa

Arrayed Villa

Arrayed Villa

Arrayed Villa

Location: New Delhi, India

Client: Private

Material: Brick, Concrete, Wood

Completion date: 2021

Built area: 604m2

Studio: Studio AVT Architects Pvt Ltd

Lead Architects: Ankita Sweety, Pratyoosh Chandan

Design team: Gaurav Chauhan, Abhishek Jain, Hina Sharma, Vivek Kotha, Tavleen Kaur, Riddhima Sharma

Structure: Rajeev Gupta

Furniture, Modular Kitchen, In-house Furniture: : Plum by Bent Chair, Spacewood, NA Interiors

Photographer: Avneesh Kumar

Story:

Text provided by the architects:

Arrayed Villa is a Residence by Studio AVT for an Urban Family of Delhi with rooted old school charm, which resulted in a design language where yesteryear’s integrity meets the delightful modernity of the current era with a promise of timelessness.

 

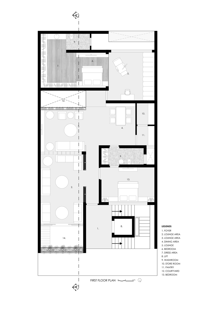
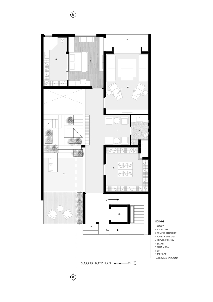
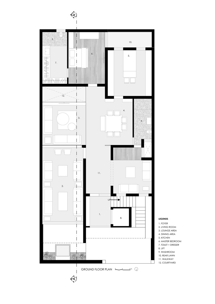
The name “Arrayed Villa” comes as a response to the Organisational Segregation through a vertical array of living arrangements of the family divided floor wise. The Ground Floor here bears the soul of our Clients Mr. & Mrs. Malhotra, the First Floor is an extension to the personalities of their young Son & Daughter-in-law, the Second Floor is an amalgamation of Indoor & Outdoor spaces catering to the need of unwinding and entertaining Guests, while the Blue flight of cheerful steps on this floor takes you through multiple Sit-outs & Planters to finally reach the Upper Deck on the Third Floor.

 

Visual establishment of the Name “Arrayed House” can also be seen as the design language of protruding array of bricks stacked in multiple layers onto the façade, flamboyantly displaying an old school charm, while Jali, rotating Fins, Pergolas and hanging Chajjas are embracing the layered bricks with a contemporary cloak.

As you open the 6’ Wide pivoted Main door to enter the House, you will be greeted with the plush Interiors of an intertwined Foyer cum Core area with Lift & Staircase and waiting lounge. The Lift walls here are wrapped with dark grey metallic Laminum with copper inlays adding grandeur, Wooden stairs with well- lit risers wraps around the Lift while flooring here is done in a combination of two varieties of Light & Dark Italian Stones laid out in a custom made pattern adding opulence for a lasting first impression.

 

Another 6’ Wide pivoted door brings you inside the Internal Foyer threshold while segregating the Main Foyer & Core area from the rest of the house, the flooring of the Core area continues here for a while till it greets the larger Lobby towards the “brahmsthan” of the House. This Internal Foyer provides access to a Home Office cum Lounge on one side and the Formal Living Room on the other side.

 

One end of the Formal Living Room opens up to an inward looking Courtyard acting as a cozy respite space, which in essence becomes a part of the Living Room as and when required. Amidst the play of natural & artificial ambient light are a pair of distressed turquoise blue doors cheering the place up, while a water body as the focal point in the centre brings in harmony & peace to this Courtyard. Pergolas above with MS Jali & Niches with MS Jali as well as a variety of plants make the Courtyard private & personal at the same time. The other end the of the Living Room has a partition that houses a Bar Unit with back- lit Corian panels on top & Vertical Wooden louvers on the sides.

 

Further inside the house is an informal Family lounge right across the Dining Area which sits adjacent to the Kitchen on one end and a Master Bedroom on the other end. The focal points here are a small Courtyard on one corner and a rich looking Buffet Counter on the other corner. The hanging Turquoise Blue Buffet Counter here is supported by a group of Metal bars in copper finish with pebbles running across the length at the bottom. Adding the plush character here is the rear Courtyard Wall that stands out for a pure brilliance in craftsmanship of bringing together a rare yet exquisite combination of Turquoise Blue Lacquered Glass, Dark Grey Italian Stone and polished Solid Wood while Green creepers from above is growing and embracing this wall one day at a time.

 

 

On the deep right end is the main Kitchen which opens up to a rear Courtyard at the back that also acts as the service area, the other end of the Kitchen opens up to the Dining Area in the front. The Kitchen houses an Island with the Hob in the centre which also becomes coffee table on one end. On one side of the Island is the running wall of full height storages flamboyantly boasting a deep Red Lacquer finish while the other side has running storages at the bottom, running over head storages and running Composite counter with a backsplash of Beige Corian with Red Corian Inlay. Finally, four back-lit niches with Red Lacquered finish becomes the focal point as one enters the Kitchen, adding drama while maintaining the “Red” Character.

 

The Core area on the First Floor opens up to a Lobby leading to the Living Area wherein modern yet subtle character of Materials, colour palette & open plate planning brings in a refreshed design language. The living area here is greeted with a Landscaped Terrace in the front prompting a well ventilated air flow through the house. A Guest Room sits right across the Living Room with a Mustard Yellow and Dark Grey Colour palette that completely energises the ambience of the room. As one moves further inside, a TV Lounge with youthful Blue Wallpaper at the background takes up half the Lobby Area, while the other half is taken up by an interesting Library which re-invents itself as a casual Dining Area of this Floor whenever needed. For added eloquence & continuity, the flooring here is again done in a combination of two Italian Stones laid out in a custom made pattern as done in the Floor below. The Courtyard with its vibrant back wall, that travels from the Ground Floor to this Floor and finally to the Terrace above becomes a focal point of this Floor too. A collection of multiple Photo frames hanged onto the Grey Wall welcomes you with a story as you enter the young & dynamic Couple’s Master Bedroom.

 

The Couple’s Bedroom on this Floor is an amalgamation of a large private Lounge, a private Terrace, a cocooned and tucked-in Bed area and a Walking Closet with an ensuite Washroom. Angular slats of polished Wood runs across the Bed back wall and the Ceiling above embracing the Bed area which is placed on a raised platform, spatially adding to the Cozy character of the Room. The walking closet is finished with a combination of Beige & Black Lacquered Glass as shutters, the Ceiling here is finished with a paneling of knitted Fur that adds coziness. A large settee and pivoted Mirror Door leading to the washroom here are wrapped around in a Maroon Leatherette, the same Maroon Leatherette is also used in the ensuite Washroom as well as Private Lounge which adds bling and lends a rich character to the whole Room.

 

As soon as you reach the Second Floor, a large artefact of a peaceful Buddha greets you. As this floor acts as a common entertainment floor for the Malhotra family, the Foyer here is not enclosed, thus bringing in a lot of daylight through a serene play of MS jail in the front. A large portion on this floor is kept as an open to sky Terrace area, while intentionally giving a private character by placing it adjacent to a large double height neighbour’s wall on one side, providing an MS Jali Screen in the front, and an interesting end to end flight of interactive steps positioned on the opposite side. An amazing arrangement of hanging outdoor Dining, Blue flight of cheerful steps, raised Wooden deck with Patio furniture, Grass, Pergolas, patterned Stone Wall and multiple planters make this terrace a place to be envy of.

 

Arrayed house boasts of a rich ensemble of Indoor & Outdoor spaces, which in turn frames the house in multiple ways capturing memorable moments & everyday stories. The house guarantees a day well spent and an evening worth the wait.

 

 

 

 

 Furniture: Plum by Bent Chair

 Modular Kitchen: Spacewood

In-house Furniture:  NA Interiors