Box Home

©Are Carlsen

Box Home

©Are Carlsen

Box Home

©Are Carlsen

Box Home

©Ivan Brodey

Box Home

©Ivan Brodey

Box Home

©Ivan Brodey

Box Home

©Pia Ulin

Box Home

©Rintala Eggertsson

Box Home

©Rintala Eggertsson

Box Home

©Rintala Eggertsson

Box Home

Horizontal Section 2

Box Home

Box Home

Roof Plan

Box Home

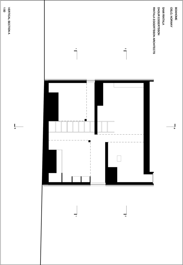
Vertical Section A

Box Home

Vertical Section B

Box Home

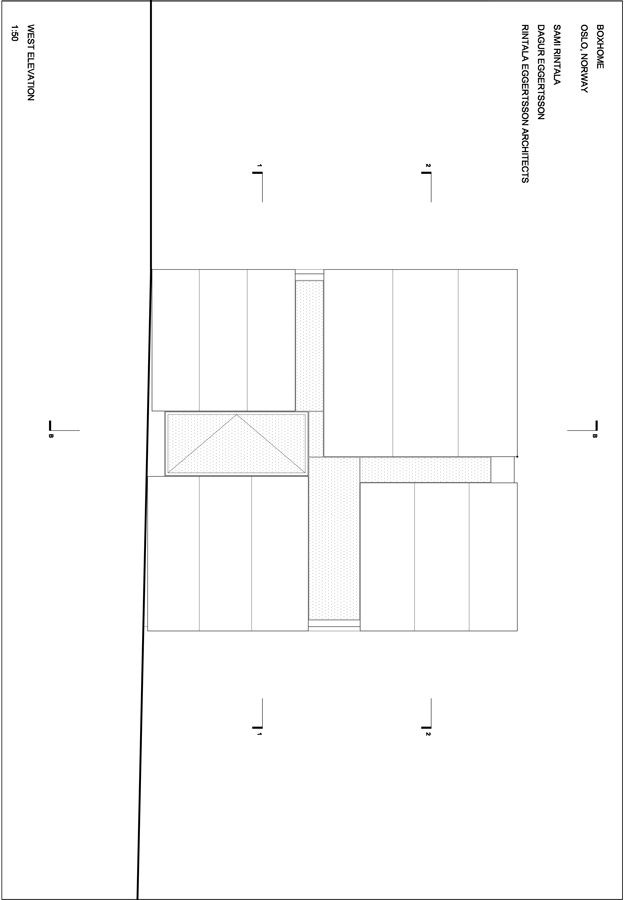
West Elevation

Box Home

North Elevation

Box Home

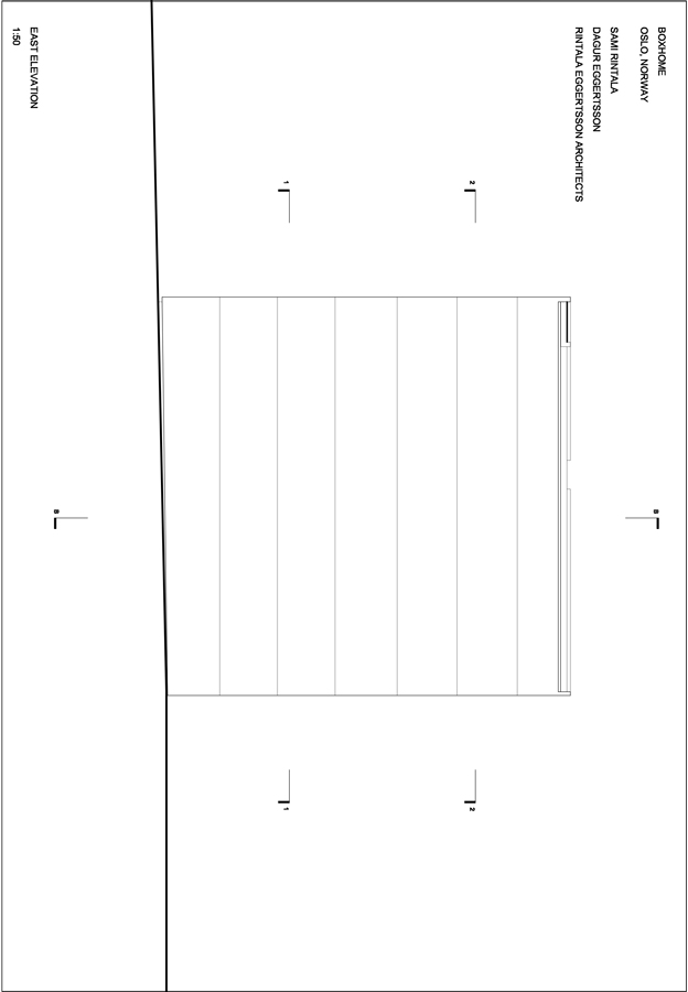
st Elevation

Box Home

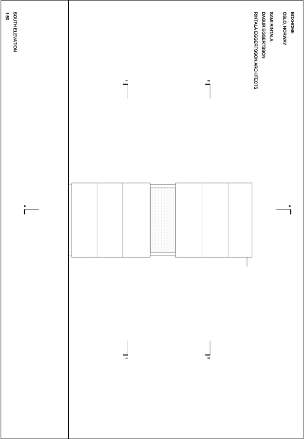
South Elevation

Box Home

Diagram

Box Home

Location: Oslo, Norway

Architect: Rintala Eggertsson Architects

Client: Galleri ROM, Maridalsveien 3

Material: Wood

Design date: 2007

Completion date: 2007

Built area: 19m2

Curator: Henrik de Menassian

Design Team: Sami Rintala, architect Oslo, Dagur Eggertson, architect Oslo, John Roger Holte, artist Oslo, Julian Fors, architect student Vienna

Funding : Aspelin-Ramm, Infill

Suppliers: metal facades: Ruukki | windows: Pilkington Floatglass | chair and lamps: Vitra Scandinavia | lamps: SM-Lys | construction material: Byggmakker | insulation: Glava Isolasjon

Photographer: Are Carlsen, Ivan Brodey, Pia Ulin, Rintala Eggertsson

Story:

Text provided by the architects:

In the North, all buildings for a living have to be made in an advanced way due to the ever-contrasting weather. Additionally, the houses have to be properly heated with external energy more than half of the year’s course. Therefore producing smaller homes would bring about a considerable economical and ecological benefit. Today the construction activity stands alone for more than one-third of total global energy and material consumption, well exceeding that of all traffic and transport.

This should be a crucial question especially in Scandinavia, where people, in accordance with their growing wealth, possess larger and larger houses. And in most cases, this in addition to a second home called a summer house or a cottage.

Boxhome is a 19 square meter dwelling with four rooms covering the basic living functions: kitchen with dining, bathroom, living room, and bedroom.

Firstly, the project focuses on the quality of space, material, and natural light, and tries to reduce unnecessary floor area. The result is a dwelling where the price is only 1/3 of the price of any same

size apartment in the same area. Boxhome is a prototype building, yet the same attitude could be taken further to bigger family housing and consequently to workplaces.

Secondly, it seems that we have given the right to produce our homes to uncontrollable groups of actors who seek mostly maximum income. The basic need to have one’s family protected has become a great business adventure. Making a simple house, after all, is perhaps not such a difficult task that it

should be totally left for this kind of force. Moreover, meeting the official construction restrictions and laws usually seems to equal to the user of the building industry products and services, thus limiting the possibilities of a real change and development to a minimum.

Thirdly, in Western societies at the moment, we are enjoying the highest standard of living ever known to humankind. At the same time, we are fully informed of the results of our culture of consumerism.

Therein lays the greatest paradox: We are forced to actively forget the real reality to be able to enjoy the facade of excess we have created around us.

Finally, and most importantly, the goal has been to make a peaceful small home, a kind of urban cave, where a person can withdraw to, and whenever wished, forget the intensity of the surrounding city for

awhile.

Related architects: