Chelak Villa

Chelak Villa

Chelak Villa

Chelak Villa

Chelak Villa

Chelak Villa

Chelak Villa

Chelak Villa

Chelak Villa

Chelak Villa

Chelak Villa

Chelak Villa

Chelak Villa

Site Location

Chelak Villa

Iranian Houses Typology

Chelak Villa

Iranian Houses Typology

Chelak Villa

Program

Chelak Villa

Section Program

Chelak Villa

Circulation Diagram

Chelak Villa

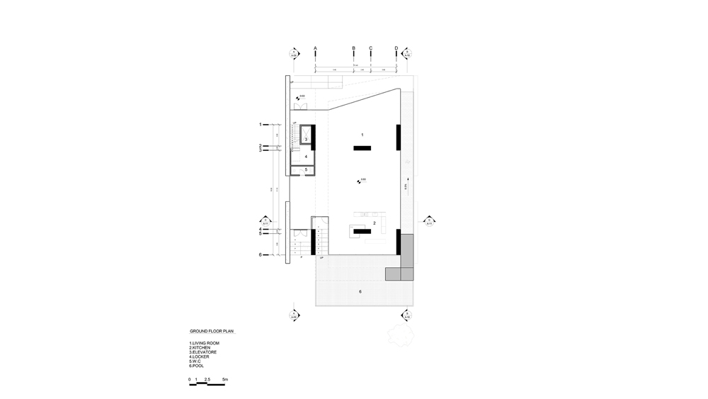
Ground Floor Plan

Chelak Villa

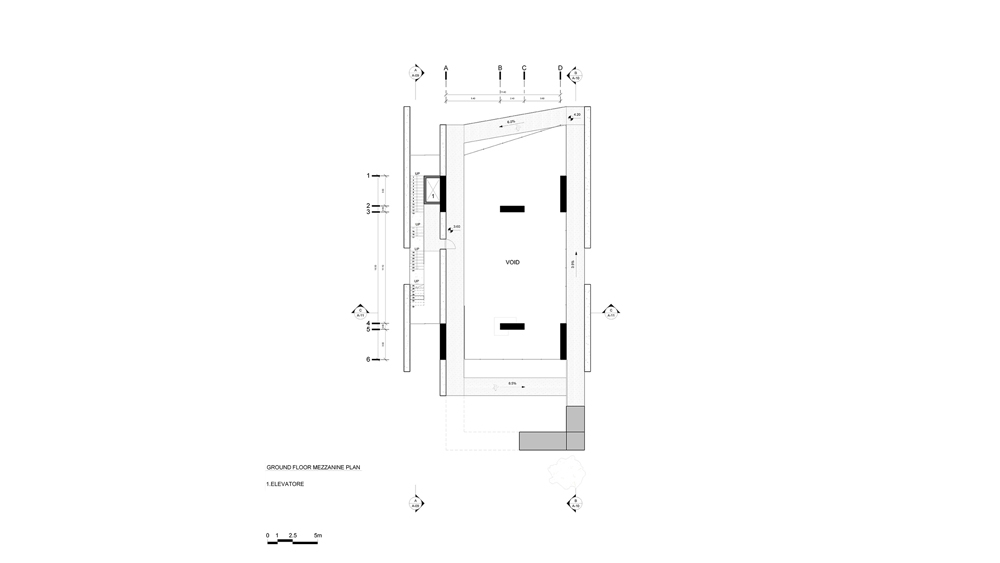
Ground Floor Plan - Mezzanine Plan

Chelak Villa

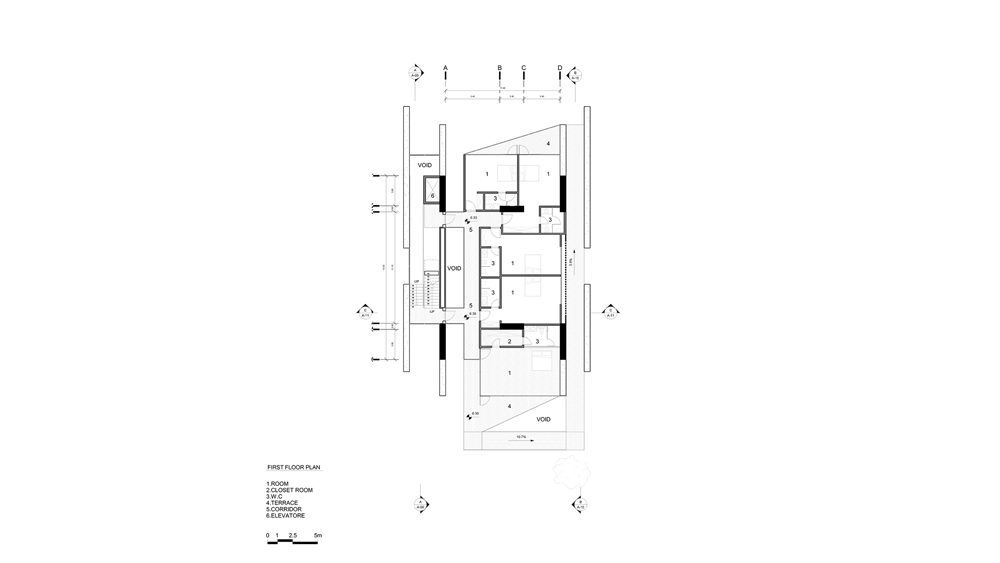
First Floor Plan

Chelak Villa

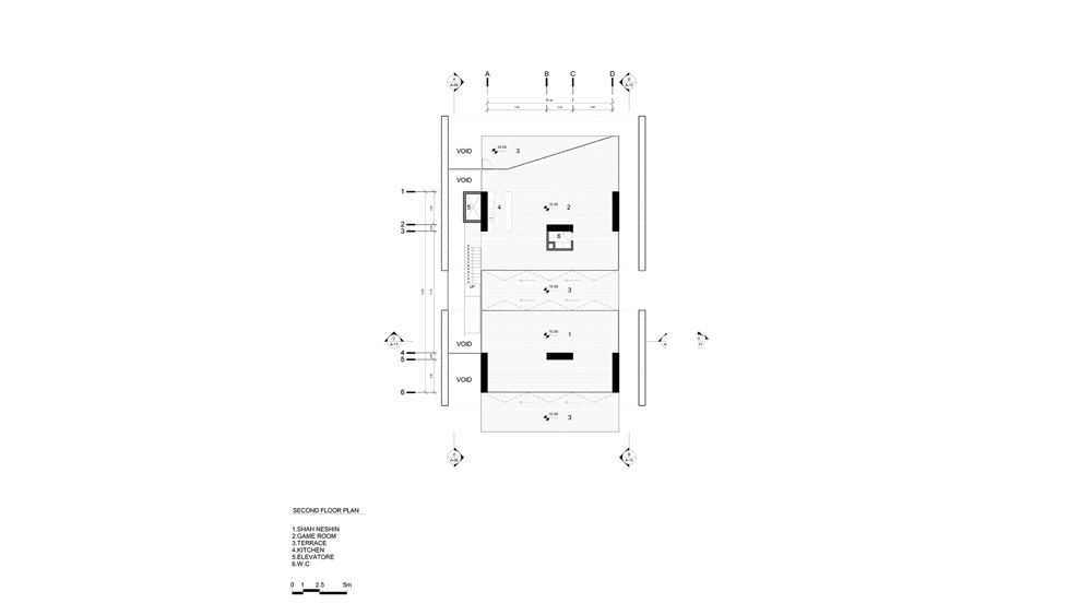
Second Floor Plan

Chelak Villa

Section A-A

Chelak Villa

Section B-B

Chelak Villa

Chelak Villa

Section C-C

Chelak Villa

st Elevation

Chelak Villa

West Elevation

Chelak Villa

North Elevation

Chelak Villa

Location: Nowshahr, Mazandaran Province, Iran

Architect: MADO STUDIO

Client: Mr. Khosravani

Material: Concrete

Design date: 2019

Studio: MADO ARCHITECTS

Head Architect : Maziar Dolatabadi

Lead Architect : Moein Nikaeen

Architect In Charge : Tina Shahnazari

Design Team : Soroush Ketabi

3D Design & Rendering : Saeid Yousefvand

Model: Tina Shahnazari, Noura Sam

Story:

Text provided by the architects:

Villa No.1 and No.2 are designed in two lands close to each other, one with 740 square meters area and the other one with 1400 square meters area on gas street at Chelak Province. The client requested a personal signature, a specific idea for him that could be presented in all his projects. According to the subject of the project, Iranian traditional house typology was studied, both introverted and extroverted. In both types, voids were memorable event occurred, whether in the courtyard of the houses in central zone of Iran or as a gholam gardesh of houses in northern part of the country. Starting from an initial programming diagram, we transform the linear relationship between public and private spaces in typical villa planning into a spiral diagram which is to fade the borders and change the hierarchy of spaces. As a result, the transformed diagram creates the opportunity to have in-between spaces as well as semi public/private ones. By developing the fuzzy diagram with a cross deformation in vertical orientation subsequently, the initial drafts of form are created as floors extend to become walls and ceilings afterwards. In the following steps in form development, the main diagram shapes the whole project by defining a main ramp connecting the entrance to the private zone directly. The project’s structure is a concrete shear wall and the materials used are wood and concrete, creating a dialogue between modern architecture and the context, as well as enhancing the connection between these two villas.

Related architects: