villaaward 2021 sheet
villaaward 2021 sheet
Location: Isfahan, Iran
Client: Mr. Ganji
Material: Concrete
Design date: 2017
Site area: 1030m2
Studio: Sheen design Studio
Design team: Ali Sherkat, Ashkan Shahdadi
Story:
Text provided by the architects:
The Persian Bagh, beyond its appearance, is a symbol and example of the Paradise and has a mystical spirit.
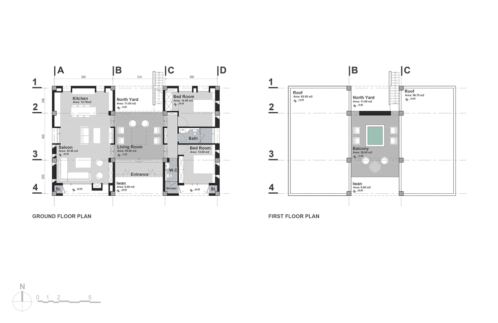
The villa in the Persian Bagh is known as the mansion and the mansion has a 9-part pattern that has been maintained and repeated throughout history with different appearances. This pattern exists in building architecture and building structure. This project is also a look at the same old pattern that has taken on a modern and contemporary form and body.
The design of the enclosure is also inspired by the Iranian Bagh and the project with the structure of the Iranian Bagh has created a new and modern look.
Selected project of 100 best works of Villa Magazine Award 2021 - with participant code VA-0358