Detached Villa

© Anders Portman

Detached Villa

© Anders Portman

Detached Villa

© Anders Portman

Detached Villa

© Anders Portman

Detached Villa

© Anders Portman

Detached Villa

© Anders Portman

Detached Villa

© Anders Portman

Detached Villa

© Anders Portman

Detached Villa

© Anders Portman

Detached Villa

© Anders Portman

Detached Villa

© Anders Portman

Detached Villa

© Anders Portman

Detached Villa

© Anders Portman

Detached Villa

© Anders Portman

Detached Villa

© Anders Portman

Detached Villa

© Anders Portman

Detached Villa

City Structure

Detached Villa

Site Plan

Detached Villa

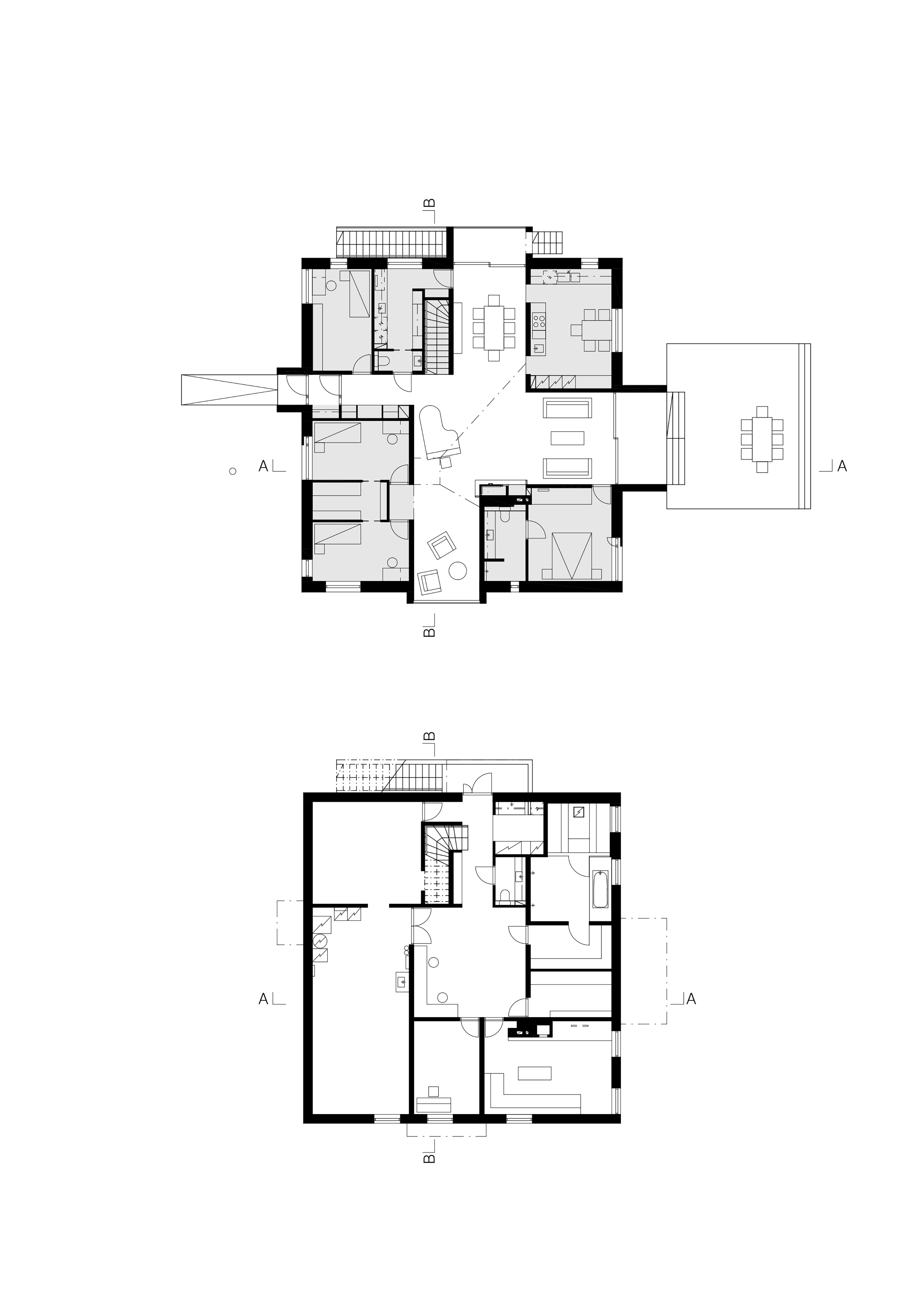
Floor Plans

Detached Villa

North & West Fazades

Detached Villa

South Facade & Section

Detached Villa

st Facade & Section

Detached Villa

Location: Hämeenlinna, Finland

Architect: Avanto Architects Ltd

Client: Private

Material: Wood

Design date: 2015

Completion date: 2022

Site area: 1712m2

Built area: 439m2

Principal Design: Ville Hara, Anu Puustinen, architects SAFA, Hiroko Mori and Emmanuel Laux, architects

Structural Design: Insinööritoimisto Tom-Ins Oy / Tomi Karppinen

Geo Design: Tähtiranta Infra Oy / Jari Mustonen

HVAC Design: Kalle Haapea

Landscape Design: Maisemasuunnittelu Sundman / Päivi Sundman

Photographer: kuvio.com | Anders Portman

Story:

Text provided by the architects:

The location of this private house is unique: even though the site is just a couple of kilometers away from Hämeenlinna city center, the small cape surrounded by a lake is completely in its own privacy. There are long pastoral views over the lake to fields and forests. As the area’s landscape is valuable, the city’s master plan set tight regulations to new buildings. The new building was to be placed on the footprint of an old villa that was demolished because of its bad condition. The massing, roof shape, height, and façade materials needed to be in harmony with the surrounding old buildings.

The concept of the building is clear. The building volume with square shape conceals a cross-shaped open space as in the “Four Cornered Villa” we designed earlier. The closed rooms are situated between the four wings of the open space. Interesting views to four different directions open up at the ends of the cross-shaped central space. The light in the space changes constantly as the sun circles around the building. The five meter high central space, where the four wings meet, receives light also from a skylight. As the father of the three children family is a musician, a grand piano was positioned in the heart of the house. In the basement there are sauna spaces with a fireplace room, as well as a workshop and a closed room to play instruments.

 

Photographer's website www.kuvio.com

Related architects: