Fineway Villa
Location: Reutlingen, Baden-Württemberg, Germany
Architect:
Alexander Brenner
Material: Stone
Completion date: 2020
Built area: 350m2
Photographer: Zooey Braun
Story:
Text provided by the architects:
Modern Villa at the foot of the Swabian Alb
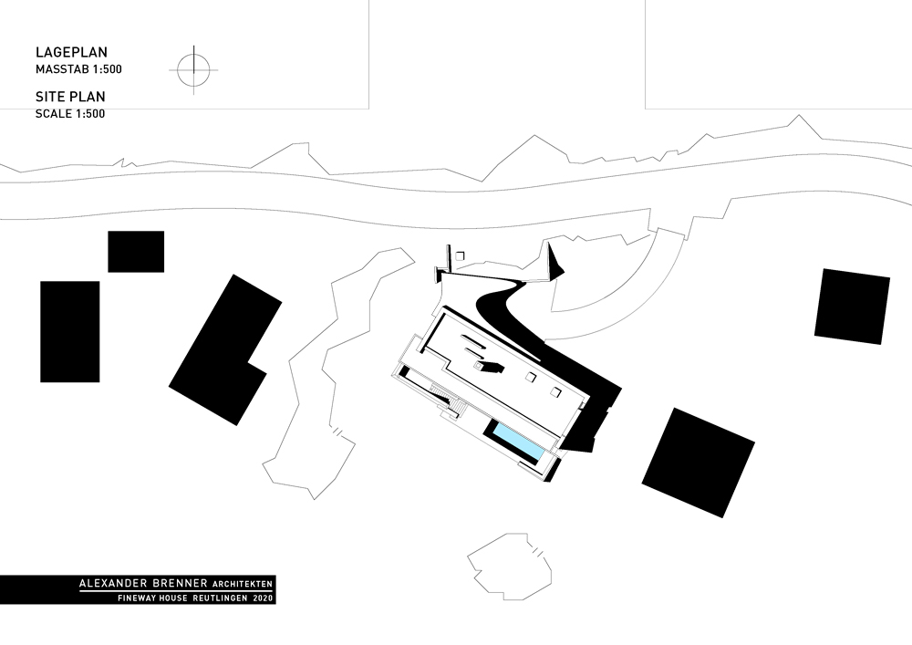
The modern villa was built on a plot of land on the outskirts of Reutlingen on a popular mountain trail, directly below the Achalm Mountain.
To the north, towards this path, it appears like a stone, solid and closed, and opens with floor-to-ceiling glazing to the view in the south. Here the view wanders over the pool and the wide valley. For energetic reasons and for reasons of sustainability, the outer walls consist of 50-centimeter thick aerated concrete and a refined exposed concrete shell of 25 centimeters. By adding local Jura chips as aggregate, it appears in a warm gray beige after refining. The façade, handcrafted by chiseling, pointing, and charring, presents itself with a rough, archaic relief structure.
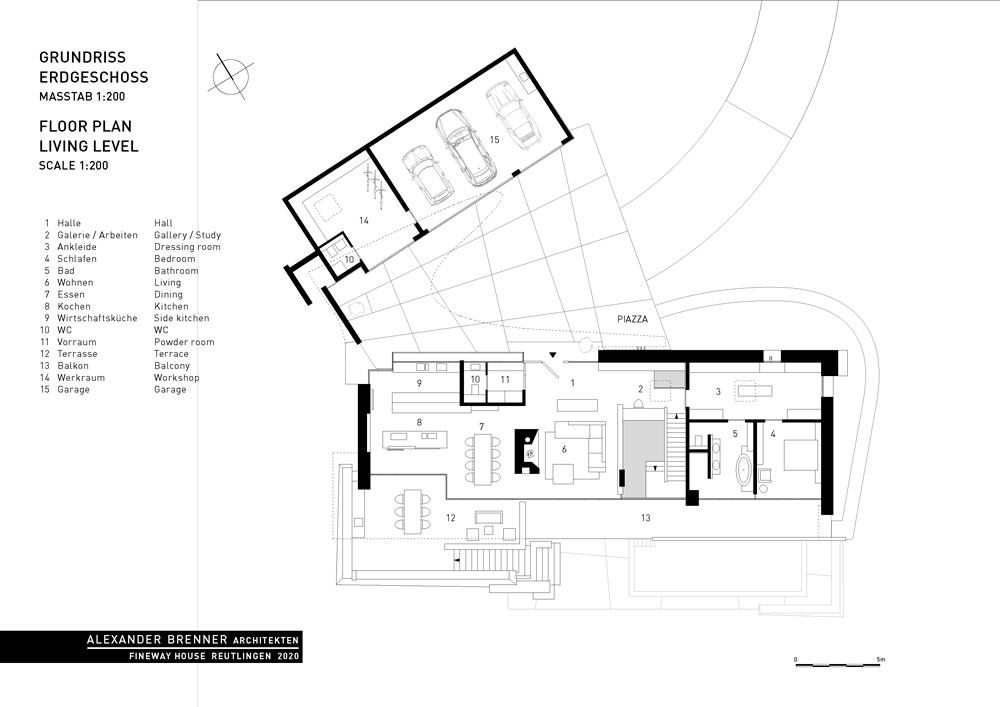
Inside, too, stonemasons created a very special atmosphere thanks to the bush-hammered concrete on fixtures, stairs, and parapets, which is reminiscent of the stone power of historical buildings. The calming feeling of firmness and durability is encouraged by limed walls, natural stone, and oak flooring.
As with all projects by “Alexander Brenner Architects”, all furniture and fixtures were designed for this project.
Based on the idea of the „Gesamtkunstwerk“ – an overall work of art, everything including the outdoor facilities was designed and planned by the architects.
This project has been published in " Villa Magazine No.12 German Villas Special Issue ".
Download the PDF here.
Related architects: