Haus P

Haus P

Haus P

Haus P

Haus P

Haus P

Haus P

Haus P

Haus P

Haus P

Haus P

Haus P

Haus P

Haus P

Haus P

Haus P

Haus P

Haus P

Location: Lenzhalde 7 88179 Oberreute, Allgäu, Germany

Architect: Yonder - Architektur und Design

Client: Private

Material: Adobe

Design date: 2013

Completion date: 2014

Built area: 908m2

Studio: Yonder – Architektur und Design

Project leader: Benedikt Bosch, Katja Knaus

Design Team: Leonhard Clemens, Felix Krummlauf

Planning of Structural Framework : str.ucture GmbH

Photographer: Brigida González, Rena Lorenz

Story:

Text provided by the architects:

Haus P is a holiday home for a family of seven from Hamburg. The house takes ques from traditional Allgäu architecture, but results in a unique, contemporary building.

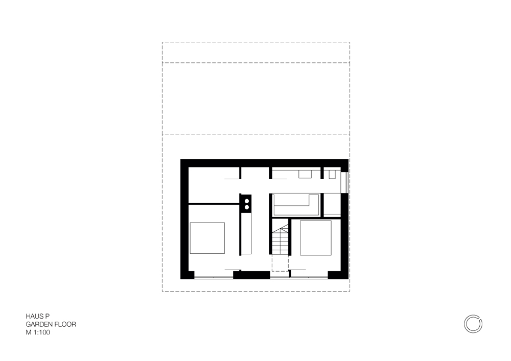
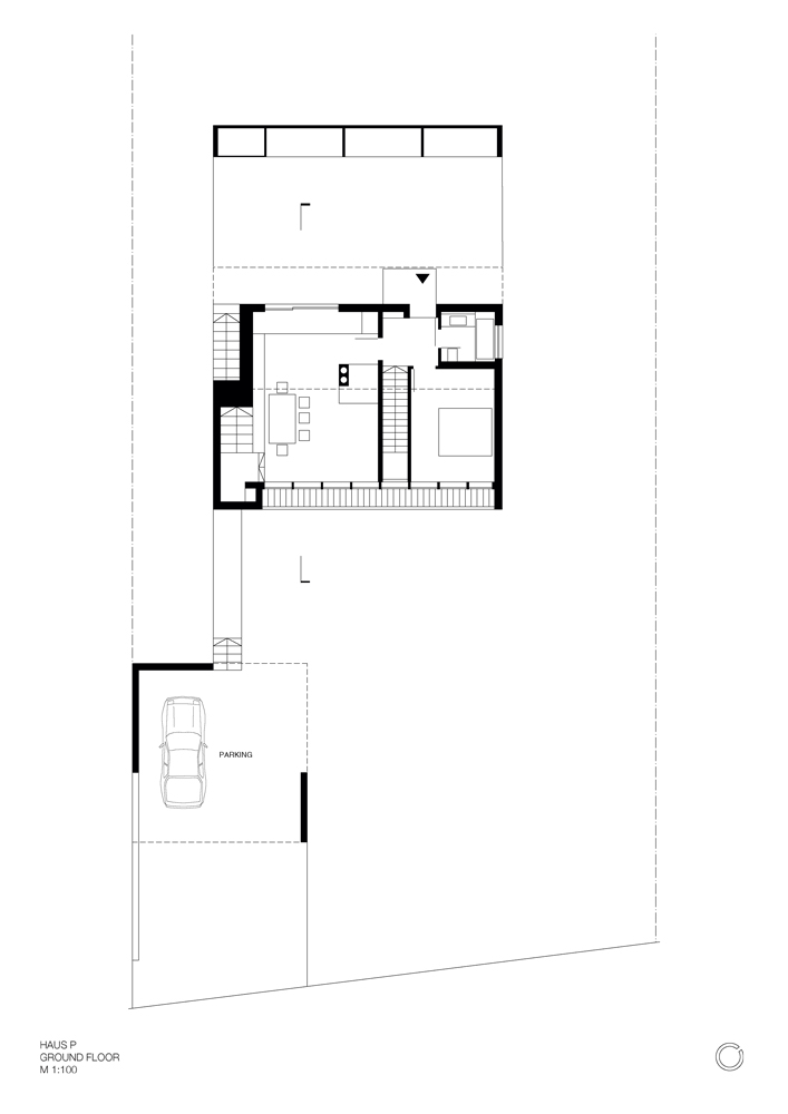
Haus P’s geometry was generated by maximizing the property’s allowable building envelope, a classic Allgäu House with a shallow gabled roof and a full lower level, and then slicing an oblique section from that volume along its center axis. From one building emerge two: a house and a storage shed. The space between offers the family a protected courtyard for outdoor activities. The resulting slanted rear facade together with a cantilevering stair in turn allow one to reach the main entrance on dry ground. The building’s canted shape also results in an impressive and generous interior space. In the main living room, a large picture window offers majestic views of the surrounding mountains. The upper and lower floors are linked by a double- height living and dining room with a gallery. A fireplace provides comfort and warmth. A loft at the upper level invites one to relax, read or star-gaze through windows positioned to afford direct views of the sky. The basement offers an additional place to retreat with two private bedrooms, a bath and a sauna.

Wood, a regional building material, comprises both the building’s main construction and facade. The facade’s timber shell is charred before assembly. This gives wood a natural and environmentally friendly weather protection and the house its unusual black appearance. Core-insulated exposed concrete at the house’s lower level contrasts the wood. It provides a solid plinth for the timber house above.

 

 

 

AWARD

2016 - Rosenheimer Holzbaupreis, recognition

2016 - American Architecture Prize, bronze  Category: Architectural Design / Residential/ Architecture

2017 - Architizer A+Awards, special mention in Category: “Private House”

2017 - German Wood-Award, shortlist

2017 - Häuser Award, 3. Prize

2017 - materialPREIS, final round category: material use

2018 - S.ARCH Award, short-list

2018 - Wood-Award Bavaria, short-list

 

This project has been published in " Villa Magazine No.12 German Villas Special Issue ".

Download the PDF here.

 

 

 

 

Related architects: