Kostner Villa and Studio

© Meraner

Kostner Villa and Studio

© Meraner

Kostner Villa and Studio

© Zanta

Kostner Villa and Studio

© Zanta

Kostner Villa and Studio

Site Plan

Kostner Villa and Studio

Under Ground Floor Plan

Kostner Villa and Studio

Ground Floor Plan

Kostner Villa and Studio

First Floor Plan

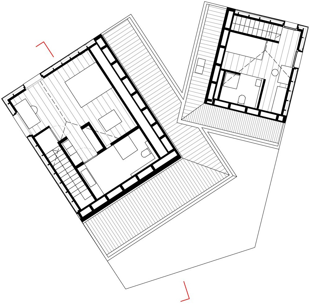
Kostner Villa and Studio

Second Floor Plan

Kostner Villa and Studio

Kostner Villa and Studio

Location: Via Marinzen 25, Castelrotto (BZ), Italy

Architect: MoDusArchitects

Client: Hubert Kostner

Material: Wood

Design date: 2009

Completion date: 2013

Site area: 934m2

Built area: 200m2

Studio: MoDusArchitects

Architects: Sandy Attia, Matteo Scagnol

Construction Management: Matteo Scagnol

Collaborators: Samuel Minesso, Volkmar Schultz

Structural engineer: Rodolfo Senoner

Mechanical engineer: Joseph Reichhalter

Photographer: Meraner, Zanta

Story:

Text provided by the architects:

Perched atop a ridge on the outskirts of the historic city-center, the house splits into two interlocking volumes to open up and look out over the valley of the South Tyrolean town of Castelrotto.  A bifurcated concrete plinth negotiates the sloping site from which the twin wooden elements rise up on a stilted timber structure to free up the view across the site at the ground level.  Tightly wedged between the house that the artist grew up in and a neighboring traditional house; the constricted site prompted a more vertical solution where the roof plays a dominant role.

 

Joined together at the hip with a spiral staircase, the constituent programs of the atelier and the house pivot outwards and elbow their way into one volume or the other like two cantankerous siblings. The work spaces of the artist’s studio, along with a small gallery, are located in the basement level and are accessed by a ramp to facilitate the loading and unloading of unwieldy materials and artwork.  One of the work spaces is a double-height, north facing studio with an even, indirect sunlight ideal for artistic production.

 

At the ground level, the zigzag of the timber structure makes for a porticoed walkway that wraps around the retracted glass perimeter where one can look down into the double-height studio or step into the small office.  The front entry is marked by the widening of the covered walkway to provide a spacious transition from outside to in.  The private quarters for the artist and his family are located on the upper levels:  the kitchen, living room and main bedroom occupy the first floor while two separate rooms with adjoining bathrooms and separate staircases are nestled below the pitched roofs.  The kitchen and living room share a south-facing terrace that serves as the entryway overhang below.

 

With exception to the concrete stair core, the building above-ground, inside and out, is characterized by its material construction of unfinished, industry grade wood and combines light-frame and cross-laminated timber (CLT) building systems.  The concrete base below, on the other hand, is finished on the outside with a reddish brown plaster that reflects the native porphyry bedrock and on the inside, the perimeter concrete walls are left unfinished.  The concrete stair core offers a smooth polished surface and is punctuated by a few pinewood doors and a small wood-framed window.

 

The “V” timber structure is pulled up into the elevations, dividing the larch wood, paneled façade into an expression of its very structural system, providing a flattened interplay between structure and cladding.  The façade is also a site of artistic intervention whereby Kostner has incised two “tattoos” of his very own house, communicating not only the close collaboration between architect and artist throughout the design process, but also signs the façade as the beginning of a new canvas, transforming the house itself into a work of art.

 

As a final note, in building a house and atelier for the artist Hubert Kostner in his touristic yet scenic hometown, we engaged in a bantering dialogue of irony between tradition and tourism, structure and ornament—to name but a few—while  holding steadfast an expression of architecture where no detail was left unturned, where everything was neither standard nor frivolously custom made.  Indeed, while much of the cabinetry and furniture is made specific for the project, an eye for simple but surprising solutions and a limited budget kept the design process in check.

 

 

Subcontractors

Urban Winkler (Concrete structure)

Ludwig Rabanser (Wood construction) 

Wolfartec (Windows)

Kometal (roof )

Josef Rier (furniture)

 

 

 

 

 

 

Related architects: