M24 House

@Mauricio Fuertes

M24 House

@Mauricio Fuertes

M24 House

@Mauricio Fuertes

M24 House

@Mauricio Fuertes

M24 House

@Mauricio Fuertes

M24 House

@Mauricio Fuertes

M24 House

@Mauricio Fuertes

M24 House

@Mauricio Fuertes

M24 House

Ground Floor Plan

M24 House

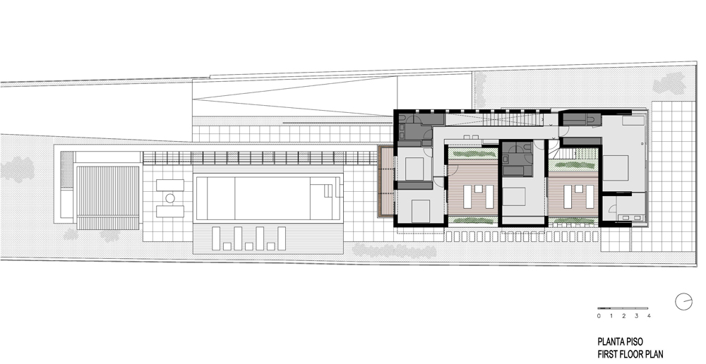
First Floor Plan

M24 House

Roof Plan

M24 House

st Elevation

M24 House

Section

M24 House

Location: Mal Pas, Alcudia, Spain

Architect: Osvaldo Luppi Architects

Material: Concrete, Stone, Steel

Design date: 2015

Completion date: 2017

Built area: 450m2

Architects: Osvaldo Luppi Architects

Photographer: Mauricio Fuertes

Story:

Text provided by the architects:

Given the narrowness of the site and marked by the northern views, a 47-meter-long stone wall becomes the backbone of the project. This axis remarks visual continuity and connection between the swimming pool courtyard and the sea. A sequence of voids organizes the first-floor level and defines the house’s geometry. In this way, the bedrooms have good views, sunlight, and privacy.

Related architects: