NJ Villa
Location: Nawamin 40, Bkk, Thailand
Architect:
TOUCH Architect TOUCH Architects
Client: Private
Material: Concrete
Design date: 2017
Site area: 100m2
Built area: 435m2
Contractor : OKCON Co., Ltd.
Photographer: Chalermwat Wongchompoo
Story:
Text provided by the architects:
NJ Villa is a private residence owned by a couple, Nun and Jea. The name of this house derived from objectives that this villa should serve their lifestyles, and also represent their characters.
The land area of the house is 100 square wah (400 sq.m.) which is located in Bangkok, the capital city of Thailand. The site is surrounded by another single-detached house which has only the front side facing south, public street. Architectural design challenges to follow the context harmoniously.
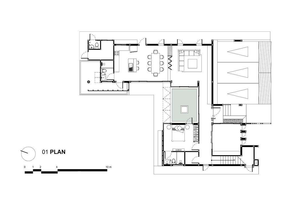
Since there is not much green space area in Bangkok, dwelling with nature is the most concern of creating space and form of the house. Instead of having a front garden area, pushing the lawn inside and creating a semi-U shape house that subtended the lawn in order to produce more privacy to the garden. It can be used for all activities, in terms of five senses, especially to see, to hear and to feel. To see the grass and trees, to hear the waterfall sound, and to feel the nature from inside. The backyard lawn is connected to the fish pond which is located at the center surrounded by the house. Both the garden and the pond can be seen apparently by every space and corridor of this villa including the upstairs level.
Accessibility to the main entrance of the house has two, which are “pedestrian corridor” that is connected to public street covered by cantilevered concrete roof slab, and “car access” that three cars garage is connected with the same front entrance foyer. The backyard can also be seen from this entrance foyer since the straight-line corridor insertion creates a see-through a sequence to inside when opening a wooden solid door. Besides, taking off shoes and umbrella hanging before going inside the house is a must activity from eastern culture, thus, long bench with aperture underneath for storing shoes and wooden elements for hanging umbrella were merged into this entrance foyer.
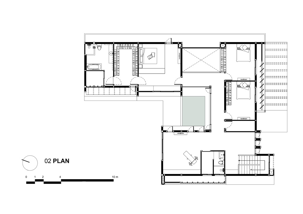
The house is facing south which is the hottest direction for all day, functions inside were allocated that, circulation, staircase, and service area were placed at the south part, while, living, dining, and master bedroom were placed at northeast part, the coolest area of the house. Moreover, in order to avoid heat radiation from direct sunlight, adjustable wooden louvers were created at every facing part, especially the front façade yet allows for natural ventilation while closing. Furthermore, two-layered roofing, concrete flat slab and asphalt shingle butterfly roof, not only prevent leaking from hard rain in Thailand, but it also helps protect from heat, since there is a gap between the two layers of the roof which act as insulation.
Inside the villa, the double ceiling height of the living area creates an airy space and also being exposed to the 2nd-floor passageway. It is also linked with a dining area by using different floor steps and folding glass door in dividing function, while can see the connection of space when closing the door.
Related architects: