pocket size villa

© Matevž Paternoster

pocket size villa

© Matevž Paternoster

pocket size villa

© Matevž Paternoster

pocket size villa

© Matevž Paternoster

pocket size villa

© Matevž Paternoster

pocket size villa

© Matevž Paternoster

pocket size villa

© Matevž Paternoster

pocket size villa

© Matevž Paternoster

pocket size villa

© Matevž Paternoster

pocket size villa

© Matevž Paternoster

pocket size villa

© Matevž Paternoster

pocket size villa

© Matevž Paternoster

pocket size villa

© Matevž Paternoster

pocket size villa

© Matevž Paternoster

pocket size villa

© Matevž Paternoster

pocket size villa

© Matevž Paternoster

pocket size villa

© Matevž Paternoster

pocket size villa

oncept

pocket size villa

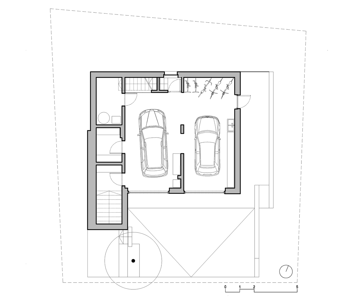
basement

pocket size villa

first floor

pocket size villa

top floor

pocket size villa

section

pocket size villa

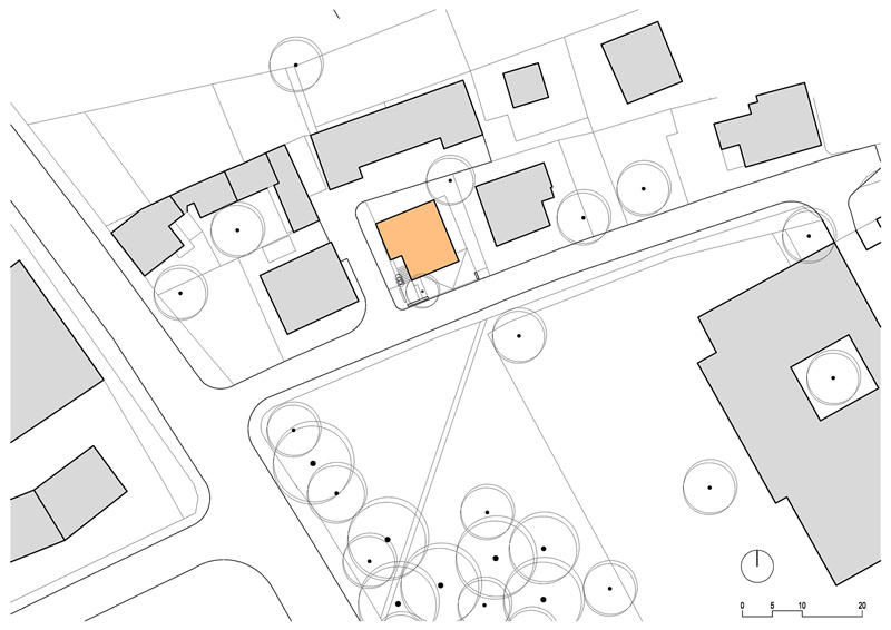
siteplan

pocket size villa

Location: Ljubljana, Slovenia

Material: concrete & wood

Design date: 2015

Site area: 314m2

Built area: 210m2

Photographer: Matevž Paternoster

Story:

Text provided by the architects:

Family House in Ljubljana, Slovenia – Pocket-Size Villa

This home for a family of four is situated on the north side of a small park. The park borders on a kindergarten and an elementary school which stands next to a lively food market, all located in a dense urban area in the northwest part the city of Ljubljana. The main reason why the site was not yet developed was its size which is just a little over 300 m2. The site and building regulations demanded a very (site) specific scheme. The living quarters and the garden are placed on the top (terrace) floor of the villa and not on the ground floor as one would expect. The end result is a hybrid between a modernistic townhouse (villa) and a terrace apartment with a rooftop garden, opening towards the park on the south.

The basement that is 70 cm lower than the ground around the villa is used as a garage for 2 cars, boiler room and storage rooms. The main entrance is on the elevated ground floor, situated in the southwest corner opening in the direction of the market. It is also a few stairs lower than the rest of the first floor. This way, a better connection between the street level and the main entrance is achieved. On the other hand, the rest of the first floor – sleeping quarters and bathrooms – is discretely elevated a few stairs above the level of the entrance and the street.

The living quarters are on the second floor – the terrace floor. The entrances to the villa and the living floor are connected with a wide and open staircase, visually and spatially connecting the two together.

The terrace (garden), living room, dining room, kitchen, and a small study (library) are composed as a collage of different spaces within a single open floor. The character of this floor is defined by the large glass walls on the south side, connecting the terrace (garden) with the interior. Small openings that are carefully placed frame the views in all other directions. The terrace floor is smaller than the floor below, therefore leaving enough space along the façade for creating a vertical garden all around the house on this floor. This vertical garden is made from intertwined steel wires and vine plants. In the parts where this garden is easily accessible, there is a small herb garden close to the kitchen and a Japanese garden along the staircase, allowing one to enjoy when descending or ascending the stairs.

Due to its size, the villa is mainly white. On the outside, the villa is clad in a simple white contact façade with the entrance part clad in terrazzo. The terrazzo changes to natural stone (travertine) in the foyer and later in wooden floors (made of teak) in the living quarters. All the interior walls, as well as the built-in furniture, are white with some elements clad in teak that was also used for the floors.