Shift Villa

©Veronika Hofinger

Shift Villa

©Veronika Hofinger

Shift Villa

©Veronika Hofinger

Shift Villa

©Veronika Hofinger

Shift Villa

©Veronika Hofinger

Shift Villa

©Veronika Hofinger

Shift Villa

©Veronika Hofinger

Shift Villa

©Veronika Hofinger

Shift Villa

©Veronika Hofinger

Shift Villa

©Veronika Hofinger

Shift Villa

©Veronika Hofinger

Shift Villa

Shift Villa

Shift Villa

Shift Villa

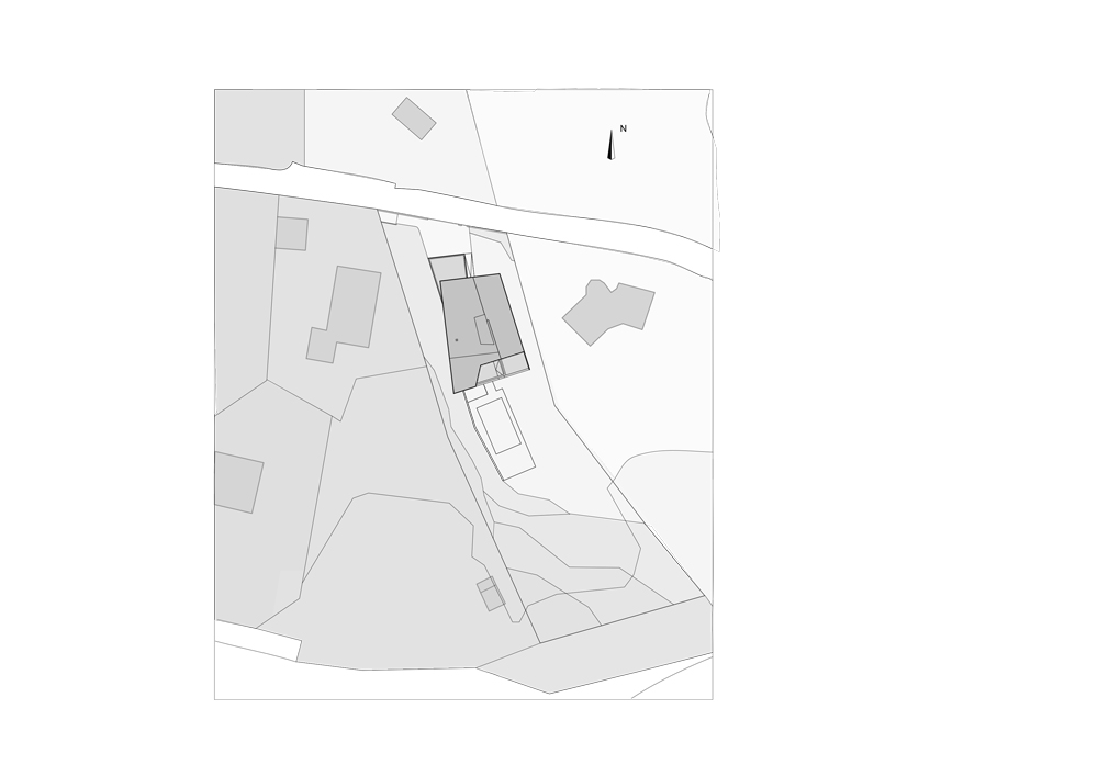
Location: Klagenfurt, Austria

Architect: HOLODECK architects

Material: Concrete & Glass

Design date: 2003

Completion date: 2004

Built area: 480m2

Studio: HOLODECK architects

Project team: Marlies Breuss, Michael Ogertschnig, Alexandra Stage, Henry van Hoeve, Franz Moser

Structural Engineering: ZT Ogris, Klagenfurt

Photographer: Veronika Hofinger

Story:

Text provided by the architect:

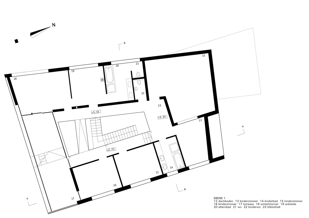
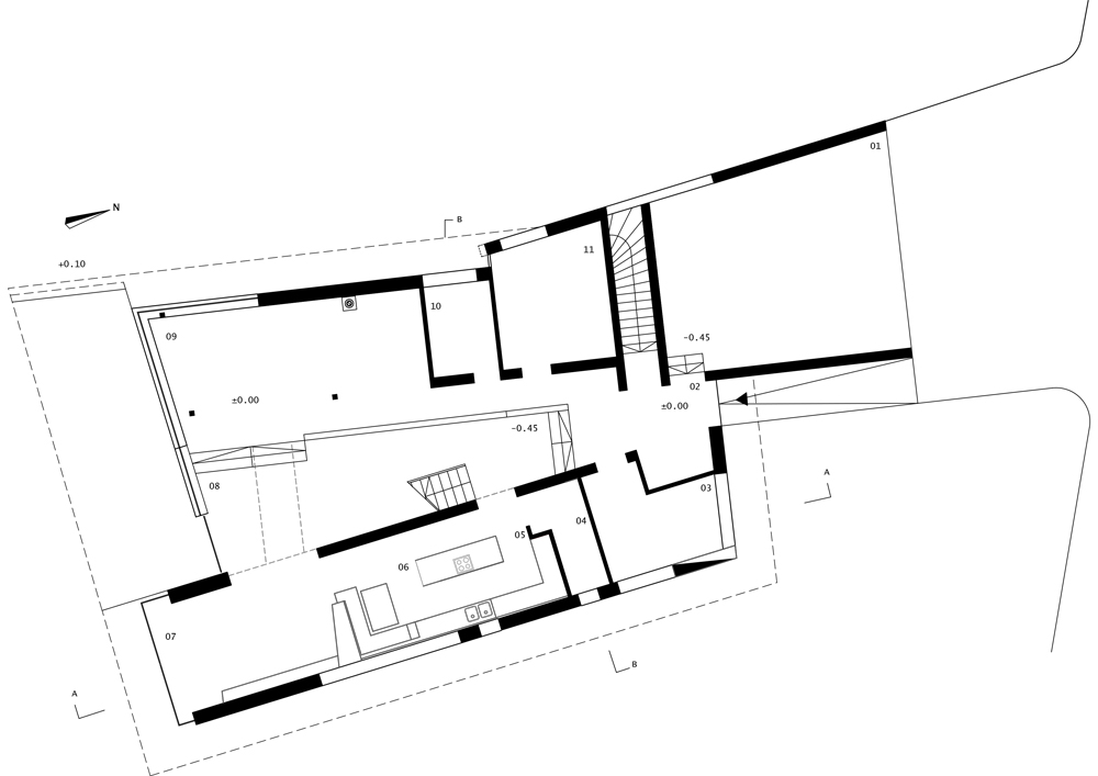
The conceptual house in the landscape as a form of living for the family. the individual necessaries of life of each habitant become the programatic content.

We analyzed the habits and asked each family member to create a pictogram of their dreams. Then we discussed the background and the vision of the future coexistence with the parents and the children. In the shifthouse common spaces are organized around the ‘lightyard’ in the center of the house for family activities. The landscape is interpreted as a folding system that floats, moves, dismantels, detaches and therefore defines open and enclosed spaces. The building developes processive between landscapeparameters and userprogram. The choosen materials support the concept into the detail in the optic, haptic and autitiv perception.

Related architects: