The Dune House

The Dune House

The Dune House

The Dune House

The Dune House

The Dune House

The Dune House

The Dune House

The Dune House

The Dune House

The Dune House

The Dune House

The Dune House

The Dune House

The Dune House

The Dune House

The Dune House

Location: Pape, Latvia

Architect: ARCHISPEKTRAS

Material: straw & glass

Design date: 2015

Built area: 175m2

Architects: ARCHISPEKTRAS

Design Team: Aidas Kalinauskas, Vaidas Tamošiūnas

Photographs: Juozas Kamenskas

Story:

Text provided by the architects:

The wind and the sunset. Kitesurfers and boats. The dune and the meadow - full of tall grass and little flowers with ever-changing colors. Layers of relative distances, experiences, and dimensions are the things that define living by the sea.

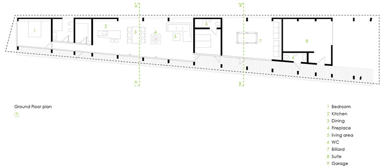
The house is situated in the dunes of the Baltic sea. A sharp linear thatched structure is elegantly intersecting and engaging with curvy lines of its surroundings. The main facade material - straws -  was carefully selected to match the color and material of a typical local building in the area.

The aim was to design a vacation house for a kitesurfer’s family where they could relax in a most comfortable way.  All rooms are facing the endless horizon towards the sea. The living room, kitchen, dining and lounge areas are grouped into one. Spaces on different levels create a magnificent experience where social interactions emerge. The light coming from top adds to the breezy character of the house.          

The Interior is full of wood and warmth. A little bit raw and soft at the same time. It invites and brings you to the holiday mood.

   

Related architects: