The Lodge

© Massimo Crivellari

The Lodge

© Massimo Crivellari

The Lodge

© Massimo Crivellari

The Lodge

© Massimo Crivellari

The Lodge

© Massimo Crivellari

The Lodge

© Massimo Crivellari

The Lodge

The Lodge

The Lodge

The Lodge

The Lodge

Location: Fagagna, Udine, Italy

Architect: UPPERCUT

Client: Amil srl

Material: Steel

Design date: 2016

Completion date: 2017

Built area: 130m2

Architects: Filippo Burelli, Giacomo Borta

Photographer: Massimo Crivellari

Structural engineering: Amsis srl

Construction costs: 1.700.000 Euros

Landscape: Stefano Morsolin, Matteo La Civita

Selection of brands/manufacturers: Reinforced concrete works: Borgna Eric - Structural metal carpentry: Offma srl - Reinforced concrete prefabs: Zanette srl - Metal cladding: Mario Mucci srl - Doors and windows: Alunord srl - Mechanical and electrical systems: Grimel srl - Waterproofing: ZML snc - Interior finishes: EF servizi e appalti srl - Landscaping: Battistella Golf srl - Metal carpentry for outdoor furniture: Carpenteria Furlano snc - Tiles and sanitary ware: Cambielli Edil Friuli spa - Lighting fixtures: Karboxx srl, iGuzzini illuminazione spa - Wall paints: Conte Colori srl - Kitchens and interior - furnishings: R.P. Ambienti di Piazza Riccardo - Custom made furniture: Fabbro Arredi - Furniture: Moroso spa - Venezia HomeDesign srl: Curtains, Mycore srl

Story:

Provided by the architects:

An all-around project, highly efficient through simple at the same time: the four buildings that make up The Lodge, the new accommodation facility of the Udine Golf Club designed by engineers Filippo Burelli and Giacomo Borta of Uppercut studio, distinguish themselves for their essential lines. Supported by their ability to effectively supervise all stages of construction, Uppercut’s proposal is guided by innovation criteria that rewrite the rules of hospitality in this particular context. The project interprets the environment and develops engineering solutions that, based on prefabrication, allow full control of the entire construction process enabling a reduction in production time and low energy consumption.

Gold is the word that describes The Lodge, the complex of four buildings intended for receptive use, designed by the duo of engineers from Uppercut, Filippo Burelli, and Giacomo Borta. Surrounded by greenery and protected to the north by the Julian Prealps and the Friulian Dolomites, in fact, The Lodge is located near Fagagna (Udine), close to the naturalistic Oasis of the Quadris, home to the projects for the reintroduction of the white stork and the protection of the hermit ibis. The property is located within the Udine Golf Club and is the latest addition to the Villaverde Hotel & Resort in Fagagna.

Four parallelepiped volumes are suspended on the ground, staggered and oriented east to west. Characterized by large windows that open up directly onto the golf course to the west, the buildings of The Lodge are distinguished by their versatility of use and for their minimal and re ned design, able to perfectly integrate with the surrounding nature and dialogue with the pre-existing structure of the resort, connected by an internal road system.

Excellence in project delivery and scheduling

The design of the complex reveals Uppercut’s desire to renew the traditional offer of accommodation facilities, exploiting their engineering skills. The four buildings are characterized by an essential design that corresponds to the structural solution, simple and inspired by criteria of agile production and construction. The steel-framed structure systems have been custom-designed and pre-fabricated, with the aim of reducing to minimum construction times, which amounted to just 9 months. The design process has been developed on a BIM platform open to collaboration between professionals: a choice that has made it possible to research and harmonize new solutions, tailor-made for the customer.

The essentiality of the line does not only have the advantage of speeding up the construction phases: Uppercut has conceived The Lodge, always thinking about minimizing the environmental impact, through a careful choice of building materials - according to reuse criteria - and the respect of advanced energy-saving criteria.

Particular care has been paid to the study of all structural nodes in order to ensure homogeneity and continuity of the insulation, eliminating all possible thermal bridges. The result is a building with high performances both during the winter, with low dispersion, and during the summer, thanks to the ventilated façade and the high thermal inertia. The entire system operates with only electrical power supply and avoids the use of fossil fuels.

While relating to the surrounding countryside, the simple structure of The Lodge o ers flexibility in its use: conceived in order to accommodate the guests of the Golf Club, its internal layout adapts to different housing needs and is designed to accommodate single guests or large groups of up to eight people.

Description of the project

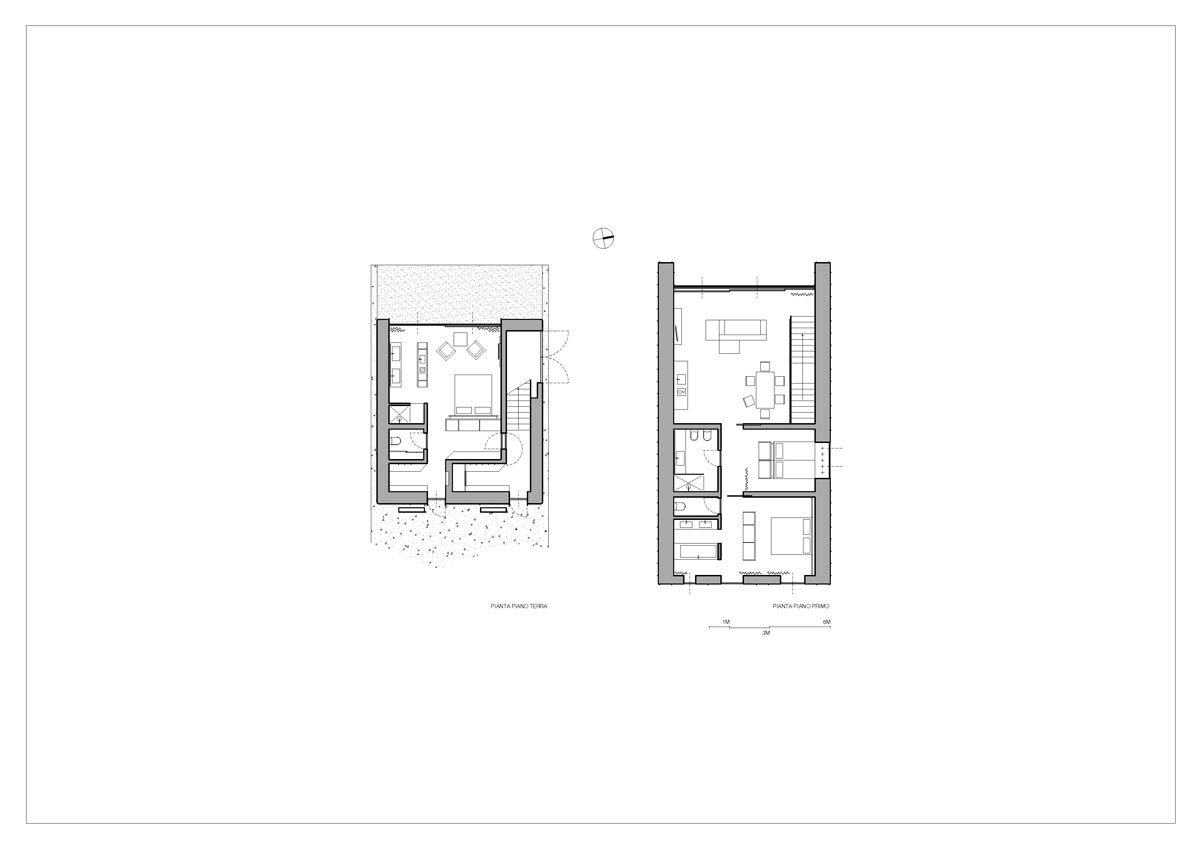
The four buildings, sitting on slightly sloping terrain, are all equal in shape and size. They all consist of two floors above ground, the upper volume slightly overhanging above the lower one, thus providing a shelter for the patio below. The lower volume, concrete, and material with its ebony black finish contrast with the upper one, glossy and precious, which, thanks to the intuition of covering the connection between the two superimposed levels with a mirroring surface, appears almost suspended. 

Each building is composed of 2 apartments with independent entrances. On the ground floor (41 sqm), preceded by a covered patio and a vestibule with its own hallway, opens up a studio with all the essential facilities and a double bedroom with large windows looking on the golf course, a wardrobe and a bathroom. On the first floor, there is an apartment (91 sqm) composed of two double bedrooms, two bathrooms and a large living area with kitchen and a sofa bed. The open space includes a kitchen, a sofa bed, and is illuminated by a large window facing west, which welcomes natural light and offers a panoramic view of the golf course. The first of the two double rooms, hosting a wardrobe, look towards the Alpine arc, while the main double bedroom, with a wardrobe and a bathtub, has a view of the hills. The two units can also be connected to each other, thanks to a double internal door located near the staircase, thus transforming into a unique structure capable of accommodating large groups, thanks to its 130 square meters of extension.

The interior furnishing has been custom-designed to provide a better organization of the lodge and of its spaces. Wide and solid surfaces have been preferred in the creation of the wardrobe, which appears raised above the ground, thanks to freestanding elements and the rounded base, looking like a light and almost sculptural presence in the room. Here, among the materials chosen, the most outstanding are the Afrormosia wood and satin-finished stainless steel, which combine elegance and practicality, so as to respond to the flexibility of use required in accommodation facilities. Completely freestanding are also the beds, which, as was the case for the wardrobe, are equipped with decomposable structures, to give total versatility in the management of the room, which can be so intended for a couple, as, separated the furniture and brought along the sidewalls, used by friends. 

On the ground floor, important design work has been done for the custom wall unit between the bathroom and the living area: here the solution found was to think of the dividing element as a multifunctional island, with shelves useful for both environments and a kitchen corner facing the golf course, functional and discreet, because it can disappear.