Through Gardens House

exterior

Through Gardens House

exterior

Through Gardens House

Through Gardens House

Through Gardens House

Through Gardens House

Through Gardens House

view from outside to inside

Through Gardens House

Through Gardens House

view from inside to outside

Through Gardens House

interior

Through Gardens House

interior

Through Gardens House

interior

Through Gardens House

stairs

Through Gardens House

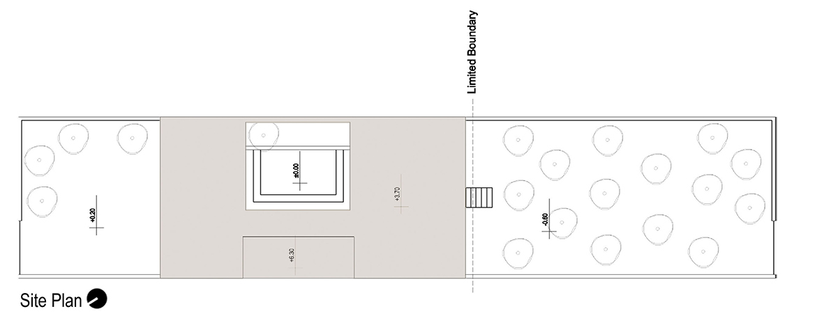
site location

Through Gardens House

site plan

Through Gardens House

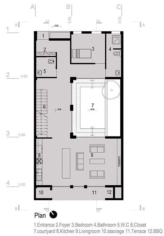
lan

Through Gardens House

sections

Through Gardens House

spatial organization

Through Gardens House

design process

Through Gardens House

Location: Parvaneh Village, Borkhar County, Isfahan Province

Client: Bahman Hafshejani

Material: Brick & Concrete

Design date: 2015

Completion date: 2016

Site area: 360m2

Built area: 122m2

Architect Firm: BAM Architects Office

Lead Architects: Babak Payvasteh& Maliheh Salimi

Photography: Tahsin Baladi

Story:

Text provided by the architects:

Imagine a retired person who after years of live on bureaucratic organizations, now wants to close his eyes to urban life, take a Scissor on his hand and smell the grapes that by himself planted it. His shelter is a house in a deprived and almost remote desert village near Isfahan city. Everything is bare and simple. So, there is no room for pretend. His home is a place for seeing and silence. Seeing the fast moves of birds on the wall and hearing the silence of desert stone. Sometimes, un-built is more important than built. There is courtyard in this house which could be a silent witness for many unexpected memories. Now built environment is in interaction with nature not in contradiction with. Part of it and for it!

This project is the result of gathering some functional spaces (look like bath, living room, etc.) around an open space. Although using a courtyard is a fundamental solution to Iranian architecture, recently many people neglect it. We tried to use a historical content (subjectivism) into the contemporary form (a simple cube). From the outside, the only thing which could be interesting about this house is its simplicity. An experimental plaster, which is made on site, is sprayed on the whole exterior walls and give an appearance look like adobe to the walls. A white stucco also covered all the interior walls to create a white canvas for placing some artworks.

Sustainability Dimension

We believe that this project could somehow sustainable because for the shortage of budget (almost 30000 US Dollar) and farness from big cities, we decided to use local materials and workers. So, we experimentally try some new building techniques alongside old techniques. Now, the local workers can do something which couldn’t do before this. Furthermore, our focus was to use local materials look like sand, stone, straw and etc.