Villa 10 x 10
Location: Sevilla, Spain
Architect:
Sol89 architects
Client: Private
Material: Brick
Design date: 2017
Completion date: 2020
Built area: 230m2
Studio: Sol98
Architects: María González, Juanjo López de la Cruz
Study Collaborators: Cristóbal Galocha, Elena González , Rosa Gallardo, Mª Luisa Benítez
Collaborator Structure: Alejandro Cabanas
Collaborators Facilities: DimArq
Technical architects on site: Fernando Tarriño, Julián Fernández
Construction Company: Construcciones Javier Guzmán S.L.
Photographer: Fernando Alda
Story:
Text provided by the architects:
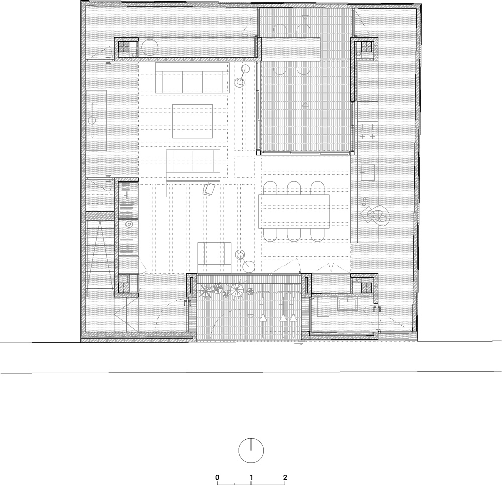
Active spaces
An urban home with an extensive family program like this one requires a large number of technical and minor places as important for domestic life as those we usually call main spaces. Bathrooms, toilets, kitchens, cabinets, laundry room, clothesline, rooms and spaces for facilities, warehouses, wardrobes, planters, stairs, bicycle racks and terraces constitute a repertoire of active spaces that are as decisive as those dedicated to rest and relaxation.
The central plan
The geometry of the site where the house is located, a square ten meters on a side with three dividing walls and a south-facing façade, and its location on the edge of a low-density neighbourhood facing the rear of an avenue of urban penetration with a lot of traffic, suggest moving this collection of small active spaces to the perimeter of the site, freeing the center of the square for main spaces that will be protected by a double belt of storage and facilities.
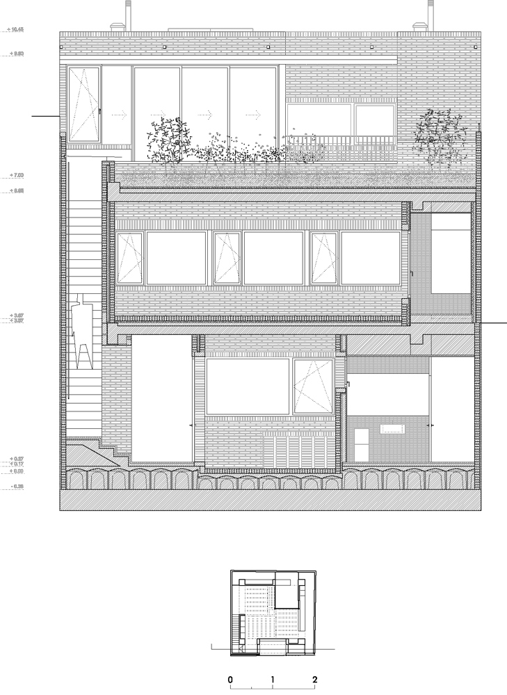
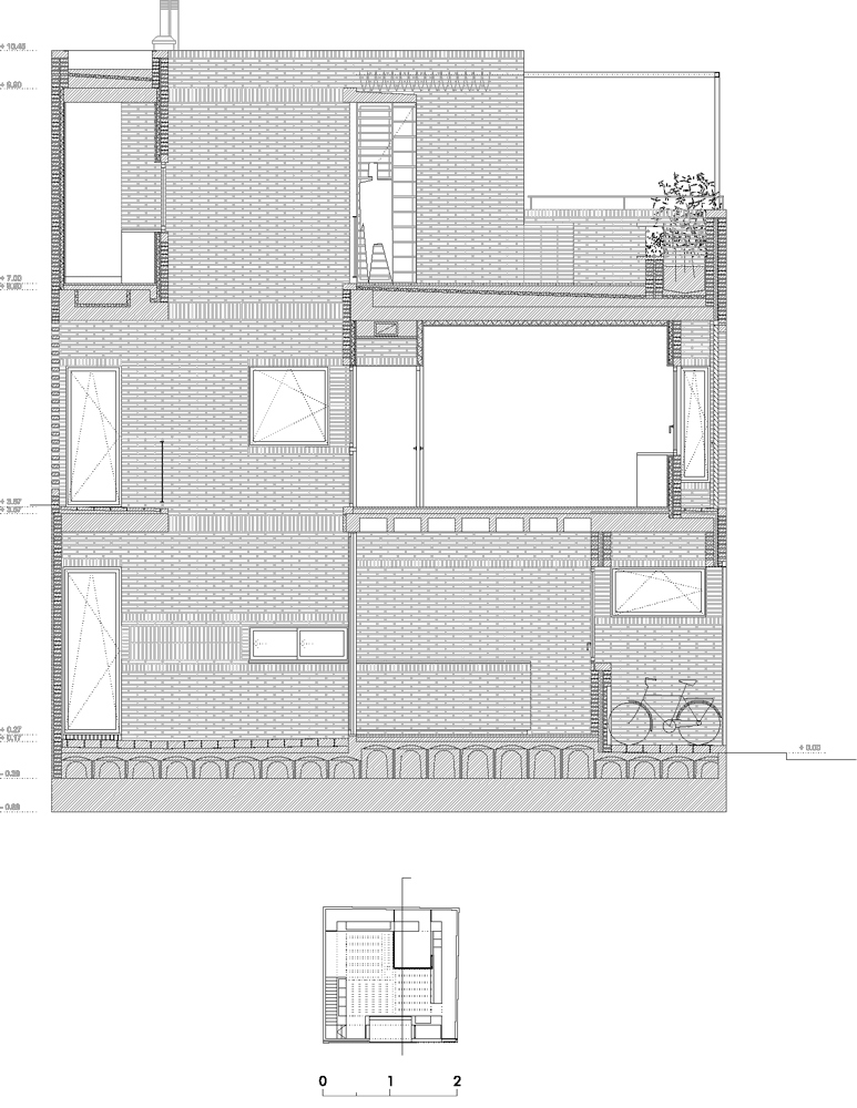
The gross limit
A double brick wall box, the first exterior and the second interior, thickens the limits of the site and houses the four concrete pillars set back from the dividing walls on which the slabs of each floor rest. The rooms with wet facilities are arranged in the outer ring allowing natural ventilation and associating the downspouts of facilities to the four concrete supports.
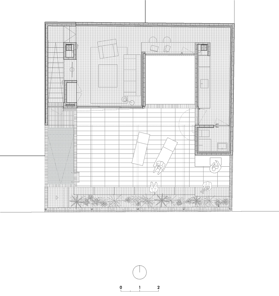
The spaces in between
A quarter of the interior square is reserved for the patio to which the living room-kitchen and the master bedroom are turned, the other three bedrooms are protected from the southern sunlight and the immediacy of the street by the loggia made up of thick skin . In the access to the house, the unfolding of the façade generates a hallway where you can leave your bicycles. This space reconciles the meeting between the public and the private. The double façade makes it possible to provide the precise scale to the openings of the domestic interior and the urban exterior, each face responding to the desired functional or figurative requirements. Finally, the roof terrace is conceived as a place to celebrate and meet with friends and family, so we propose to reach this floor with a certain independence from the rest of the house. Thus, we propose a one-section staircase inserted between the two brick boxes as a walkway, a tangential transit with an exterior character that borders the living spaces allowing almost independent access to the different floors.
Construction as language
The intention of incorporating the patio space into the living room suggests using the same material for the walls of one and the other to blur the limits between the interior and the intermediate spaces. A greyish brick that alternates two formats constitutes the two walled boxes that make up the thick skin of the house. This ceramic materiality together with the concrete floors gives the space a constructive expression that nuances the abstraction of the plant.
Geometry as composition
The house assumes the type of central plan surrounded by smaller spaces as a result of the dimensions of the site and the urban conditions. The concentric geometry that this spatial arrangement entails is relied to establish fluid and dense relationships between the different spaces of the house, between those that we inhabit slowly and those that allow the evolution of daily life.
Related architects: