Villa 144

©Parham Taghioff

Villa 144

©Parham Taghioff

Villa 144

©Parham Taghioff

Villa 144

©Parham Taghioff

Villa 144

©Parham Taghioff

Villa 144

©Parham Taghioff

Villa 144

©Parham Taghioff

Villa 144

©Parham Taghioff

Villa 144

©Parham Taghioff

Villa 144

©Parham Taghioff

Villa 144

©Parham Taghioff

Villa 144

©Parham Taghioff

Villa 144

©Parham Taghioff

Villa 144

©Parham Taghioff

Villa 144

©Parham Taghioff

Villa 144

©Navid Mehraban

Villa 144

Villa 144

Villa 144

Villa 144

Villa 144

Villa 144

Villa 144

Villa 144

Villa 144

Villa 144

Villa 144

Location: Bushehr,Iran

Material: Plaster

Design date: 2022

Completion date: 2024

Site area: 1275m2

Built area: 313m2

Architects: Navid Mehraban, Zia Derakhshandeh

Studio: Lin3rd Architects

Design team: Ali Ahmadi, Bahareh Zarei

Construction Operations: Seyed Jafar Jaber Hashemi

Photographer: Navid Mehraban, Parham Taghioff

Story:

Text provided by the architects:

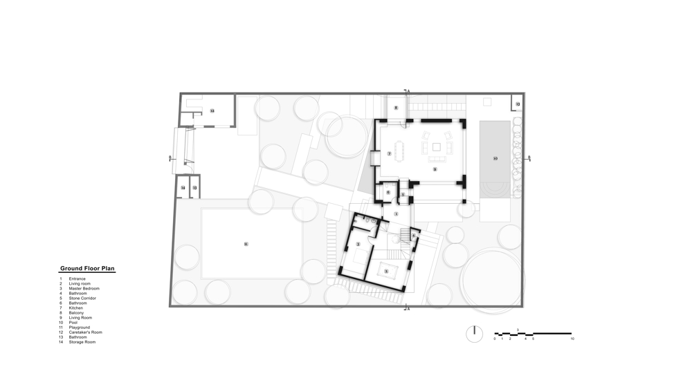
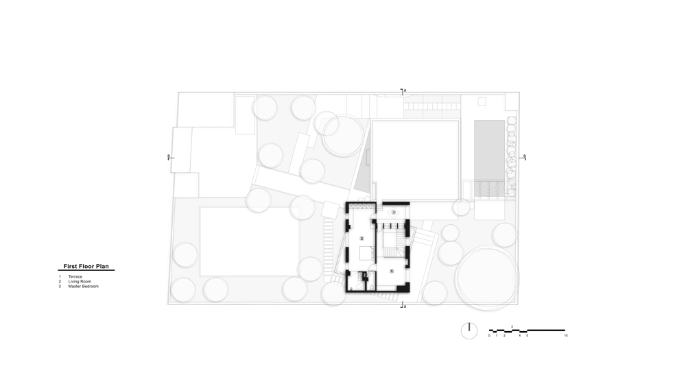
Villa 144: A Contemporary Dialogue with Bushehr’s Architectural Heritage Set near Bushehr, a coastal city in southern Iran, Villa 144 reinterprets the spatial poetics of the region’s 18th- and 19th-century residential architecture, marked by narrow, winding alleys. The villa is composed of three interlocking white cubes arranged on multiple levels, defining a network of indoor and outdoor spaces. At the heart of this composition lies the entrance, serving as a transitional threshold between public and private zones, and between east and west courtyards. This layered configuration echoes the lightness and floating quality often found in the Houses of the Historic city of Bushehr. Approaching the villa, the main living volume appears to float above a reflecting pool lined with turquoise Iranian tiles—its sound and presence offering a cooling contrast to the surrounding heat. The living room, the most open and interconnected space, visually engages with four courtyards. Its focal point, a framed antique Heriz rug, and kitchen details like handwoven Zanjan rugs celebrate Persian craft within a contemporary setting. Connecting the entrance to the core spaces is a 3.3-meter corridor with coral stone walls—an homage to local building traditions—and raw iron floors and ceilings that add a tactile, grounded contrast. The villa’s landscape has been designed to offer multiple pathways, allowing visitors to explore the garden in various intended and unintended ways. These routes provide deeper engagement and a more profound understanding of both the garden and the villa. The garden is a collection of native and nostalgic trees of Bushehr, including different varieties of bougainvillea (the most beloved tree in Bushehr), several types of Ficus family, six rescued mature eucalyptus trees, and the majestic silk tree—the most striking tree of Bushehr. Throughout the design process, we excavated prominent archetypes of Persian—and more specifically, Bushehri—architecture, distilled their functional essence, and reconfigured them to align with contemporary lifestyle. In traditional Bushehri architecture, there are no cul-de-sacs. Instead, users move through a network of narrow alleys—reminiscent of Borges’ labyrinths—allowing for layered, narrative-based spatial experiences. In the design of Villa 144, inspired by this ethos and with the aim of deepening subject-place interaction, the structure has been intentionally freed from spatial dead ends. The result is a layout that invites a more intuitive, intertwined, and multi-narrative engagement with place.