Villa A

© Manfred Seidl

Villa A

© Manfred Seidl

Villa A

© Manfred Seidl

Villa A

© Manfred Seidl

Villa A

© Manfred Seidl

Villa A

© Manfred Seidl

Villa A

© Manfred Seidl

Villa A

© Manfred Seidl

Villa A

© Manfred Seidl

Villa A

© Manfred Seidl

Villa A

© Manfred Seidl

Villa A

© Manfred Seidl

Villa A

Villa A

Villa A

Villa A

Villa A

Villa A

Villa A

Location: Linz / Upper Austria

Architect: Najjar & Najjar

Material: Concrete, Stone, Steel

Completion date: 2008

Site area: 5000m2

Built area: 650m2

Architects: Karim Najjar, Rames Najjar

Fellow Employees: Julia Martin, Ali Reza Melininia, Sebastian Brandter

Landscape Design: Topolis landscape architecture

Photos: Manfred Seidl

Story:

Text provided by the architects:

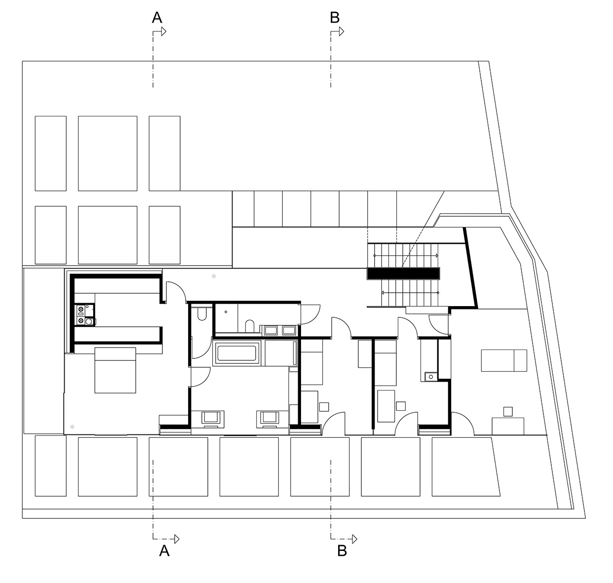
Villa A is located nearby on the slope of the Poestling Berg, a mountain overlooking Linz the capital of Upper Austria. The property is about 5000m2 in a protected green zone with an old tree population. The site is accessed from the road behind leading down hills to the building’s main entrance, covered by an extended cantilever roof structure. On the street side, the building facade is closed with natural stonework to provide intimacy towards the street. The other side is entirely open to the panoramic view of the city. After crossing a small pond, one is invited to take a breathtaking panorama view of the city before entering the central hall of the house. Following the topography of the site, the house is partly caved in the ground.  The dining area with an open kitchen is reached by taking a few steps down from the central hall. From there another couple of steps lead to a comfortable area where one can lounge on the sofa or chaise longue overlooking the swimming pool and enjoying the marvelous view over the city.

The architect’s intention was to embrace various functions in one open living area, accommodating the various functions on different levels, always balancing their functional particularities within an open space. Also, they wanted to differentiate formally and structurally the upper floor from the other two levels below. The purpose was to contrast the different functions of the building. The floor materials are distinguished according to level and function. The lower levels are mostly designated for living, lounging, and dining. These activities are embedded with different levels into the topography of the land and have direct access to the surrounding garden. The earthy relationship led the architects to opt for a massive concrete structure that is gladded with stone. Above these, bedrooms are embedded into roof structure is carried by steel columns, totally detached from the massive walls below, almost flying over the massive walls.

Throughout the design, the architects intended to experience the building as an object that is experienced gradually in sequences. This led to a specific design methodology where certain views and situations are observed. Then spatial visions were rendered in sequences. The passage around and through the building was set up similar to a storyboard use for movie making. From there the architects glued these clips to set the spatial visions to a building configuration.

The property is about 5000m2 in a protected green zone with an old tree population. On the more slanted east side, there is a small fir forest, whereas scattered broadleaf trees cover the windows of the western slope. This led the architects to orient the living areas towards the southwest. This site is entirely open to the panoramic view of the city and the garden. On the north side, the building facade is closed with natural stonework to provide intimacy towards the street. Following the topography of the site, the house is partly caved in the ground. A central hall with an open stair gives access to various areas on different levels. Garage, building services, fitness area, guest room, and office are allocated in the lower, carved-in story. Living, dining, and kitchen area are distributed on three different levels in the middle part of the building. The sleeping rooms are situated in the roof structure on the upper level.  Moreover, the large scale glazing and the sliding elements blur the indoor area and outdoor space. The bedrooms are located on the upper levels that are accessed by stairs which lead to an open gallery. The basement floor is partly carved in the ground allocating fitness and wellness facilities, office, and a playroom for children. The parking garage and the machine room are dug in under the access road on the north side of the building.

Roof / Passive Energy
The roof is a steel beam grid structure with aluminum panel cladding.  On the southern and western side of the building, the roof cantilevers beyond the terraces so as to provide efficient sun protection in summer. The low winter sun warms up the interior space. This implementation of the passive energy concept is supported by a recuperator in the ground and sun collectors in the garden. It is highly energy-efficient and fulfills all requirements for a “green building”, as set in the European building standards

Related architects: