Architects in Charge: Memos Filippidis, Marita Nikoloutsou
Photographer: Memos Filippidis
Story:
Text provided by the architects:
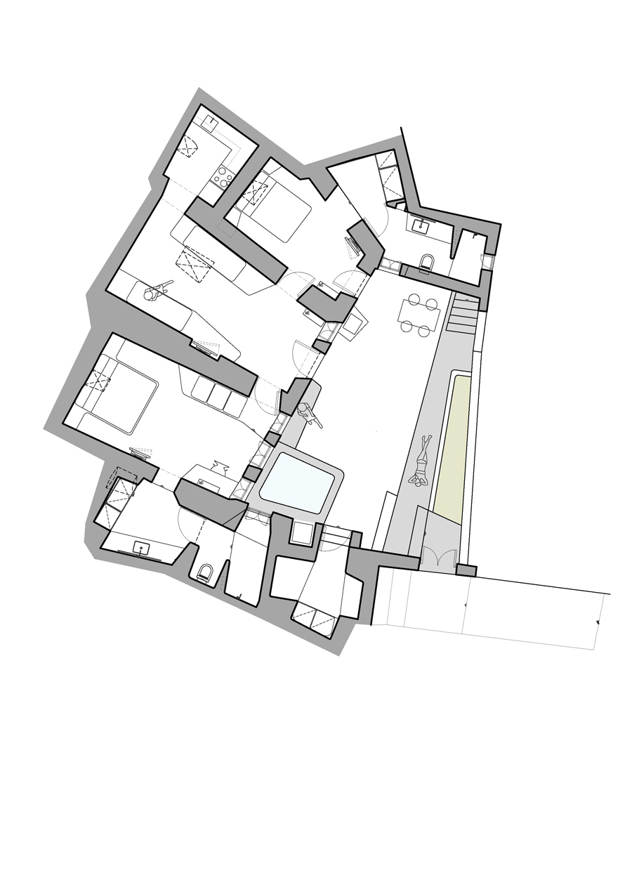
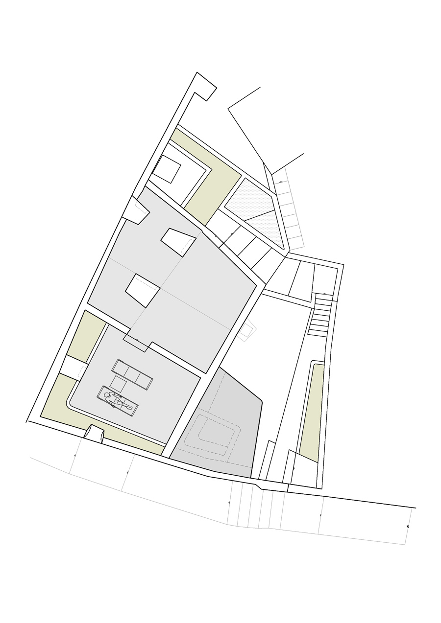
Megalochori is an introverted and quiet village in Santorini, one of the few to have retained its traditional character intact. Villa Anemolia is near the beginning of the central winding footpath that descends gradually towards the village’s square. With the privacy of a walled courtyard and away from the island’s jostling summer crowds, this villa has all the prerequisites for a peaceful stay of guests. The preexisting house required a renovation in order to address hospitality requirements and to reach a level of heightened architectural simplicity. The three rooms were preserved with minimum alterations –allowing for two bedrooms with an interconnecting door and a living area to be shared. Their vaulted ceilings belong to a long tradition of such traditional structures in Santorini when long wooden beams weren’t available in order to bridge the span of rooms. Thus interiors on the island are typically cavernous, embedded in the volcanic soil with light coming only from the façade towards the courtyard. Villa Anemolia is no exception –we supplemented this with new skylights and with embedded lights in small wall recesses so as to offer a dispersal of luminosity. The plan of the villa –typical for the traditional cavernous spaces of the island- retains this organic geometry which departs from the orthogonal. This made us replace all previous free standing furniture with built-in beds that seemingly continue the cement floor, a matte finish that is traditional for the island. The new wardrobes merge with the walls while wooden sofa beds flank the common living area. A large mirror next to one of the wardrobe areas extends the oblique geometry of the rooms. Newly planted areas in the courtyard and roof terrace upgrade all outdoor areas and become the primary backdrop for a pleasant stay.