Location: Lavasan, Tehran, Iran
Architect: Reza Daneshmir
Client: Majid Barani
Material: Stone
Design date: 2019
Completion date: 2021
Site area: 370m2
Built area: 450m2
Architects: Catherine Spiridonoff, Reza Daneshmir
Design Team: Fariba Salari, afsaneh lolayi, ghazal godarznia, Elena Bahar Lou, Behzad keramati, Amirreza shams alshoara, Homeira Asgari
Structural Advisor: Hooman Farokhi
Electrical Advisor: Amirhossein Azmayesh
Mechanical Advisor: Behrooz Noori
Construction Team: Hooman Farokhi, Masood Salamian
Story:
Text editorial:
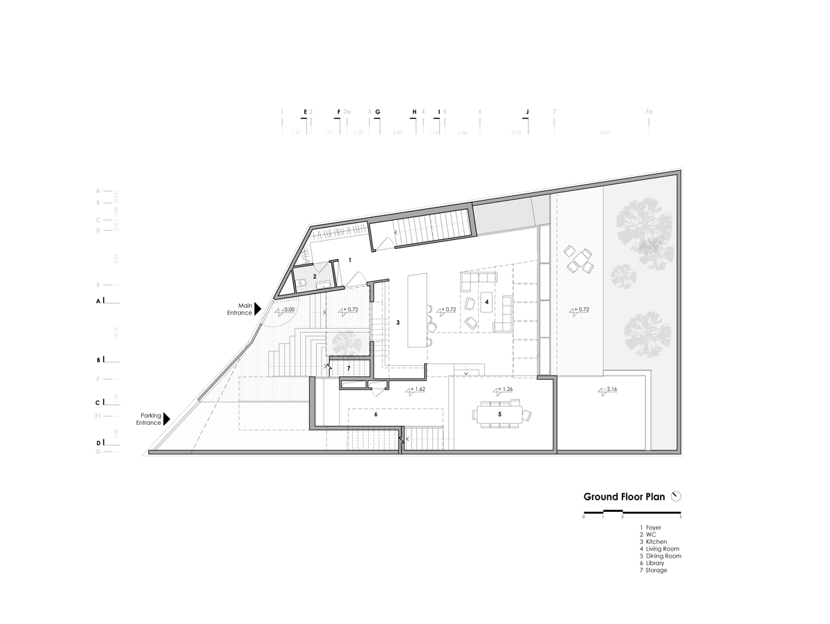
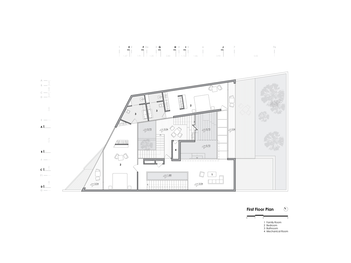
Villa Barani No.01 occupies 210 m2 of a 370 m2 plot with an approximately 450 m2 gross area in Lavasan.
Considering several aspects such as shape, mass/space, scale, proportion, texture, color, the building differentiates itself from the surroundings and fits tightly within its’ site boundaries.
The courtyard is an essential architectural element in Villa Barani’s design idea and design development, optimizing the mass density and the solar orientation. It integrates the indoor and outdoor spaces, allowing various spatial and functional configurations.
The fluid staircase allows visitors to explore new spatial perceptions yet providing vertical/easy access to the inner project; it diagonally connects the street level to the upper levels and provides pure visual experiences.
Related architects: