Villa Criss-Cross Envelope
Location: Ljubljana, Slovenia
Architect:
OFIS arhitekti
Client: Private
Material: Concrete & Metal
Design date: 2012
Completion date: 2015
Site area: 3660m2
Built area: 340m2
Project Team: Rok Oman, Spela Videcnik, Tomaz Gregoric Janez Martincic, Andrej Gregoric, Jan Celeda, Tanja Veselic, Carlos García-Almonacid, Dani Kaludjerovic, Will Gibson, Marija Barovic, Jamie Lee, Polina Isyanyulova, Daniel Muniz Domínguez, Nika Zufic, Marta Vela, Aubin Gastineau, Catarina Cristovinho, Maria Trnovska, Estefanía Lopez Tornay, Jolien Maes, Katarina Lampic, Sabrina Cep, Jade Manbodh, Elisa Ribilotta, Maria Della Mea, Lukasz Czech, Istvan Jenei, Dora Kljenak, Marko Gusic
Structural Engineering: IB TECHNO, Gravitas
Mechanical Engineering: Vavtar Engineering
Electrical Engineering: Eurolux
Lighting Design: Arcadia Lightwear
Main Construction Contractor: G&A
Photography: Tomaz Gregoric
Story:
Text provided by the architects:
The Villa is located in the Mirje Suburbs within the city center of Ljubljana, Slovenia. The street of the villa runs perpendicular to the ancient Roman Wall and continues into a pedestrian passageway under the stone pyramid designed by Plecnik (as part his reconstruction project along the wall). Villa’s new structure embeds an existing retaining wall along the street front. By incorporating the wall as part of the new construction, the new house keeps the original position on this street in axial alignment to the pyramid.
The external structure is composed of a cube volume and a perforated metal envelope. The volume extracts cut-outs to create pockets of space that provide a pyramidical stepping down along the roof, avoid along the entrance, and private glass patios with terraces for living areas of the house. Using a material with holes on both sides aims to make an abstract interpretation of the texture of classical villas in the historical suburb. The rough classical façade was represented with double perforated panels; the task was to achieve texture through the illusion of depth which allows a light presence and enhances the shadows and reflections of a palette of beige tints. The three-dimensional texture creates a dynamic abstraction while encapsulating its coherent volume. Diagonal crosses act as a functional and graphic representation. The crosses brace the frames of panels and create identity like façade ornaments on historical citizen villas.
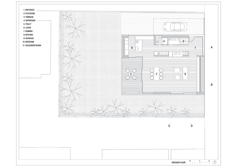
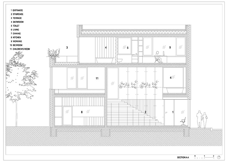
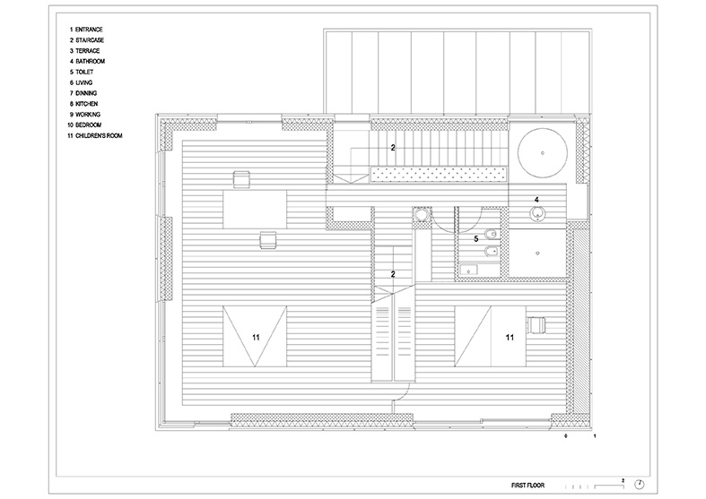
The internal volume embodies two elements: exposed structural concrete walls and a wooden shell. The project required a residence for a single family with three children. The brief was to maximize the living area with a minimum of the service space. The concept divides space based on distinct programs by separating function not by walls but floor levels: the ground floor is living/communal space, the first floor is children area and second-floor parents area. With no cellar, the shell is integral to provide all of the space for storage. The flush walls fold out to house cupboards, shelves, and drawers throughout the living areas and furniture such as beds, seating, and counters are built into the floor in order to optimize space and provide easy maintenance. This connects different spaces in the house by giving a common function to partitions.
Related architects: