Villa El cortijo

©Fernando Alda

Villa El cortijo

©Fernando Alda

Villa El cortijo

©Fernando Alda

Villa El cortijo

©Fernando Alda

Villa El cortijo

©Fernando Alda

Villa El cortijo

©Fernando Alda

Villa El cortijo

©Fernando Alda

Villa El cortijo

©Fernando Alda

Villa El cortijo

©Fernando Alda

Villa El cortijo

©Fernando Alda

Villa El cortijo

©Fernando Alda

Villa El cortijo

©Fernando Alda

Villa El cortijo

Location: Guayaquil, Ecuador

Client: private

Material: Brick

Completion date: 2015

Site area: 5000m2

Architects: Felipe Assadi Trinidad Schönthaler Alejandra Araya Macarena Ávila

Photographer: Fernando Alda

Story:

Text provided by the architect:

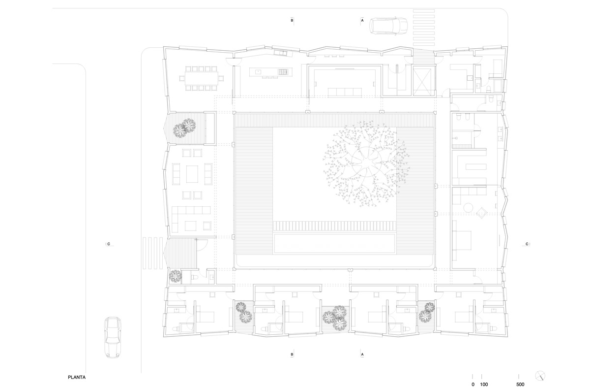
The Project is located in a condominium development of 5,000-square-meters lots. Nevertheless, the typology reflects the configuration on a different scale, of a typical city block in central Guayaquil, with back-to-back constructions occupying the perimeter and generating patios on the interior. If we were to remove the divisions, we would have a single continuous building with a large inner patio.

Likewise, the spaces of the house are articulated around a square central patio, with an internal corridor. The patio connects all of the spaces visually and ensures that the house has a landscape of its own.

The divisions between adjacent domestic paces are marked by separate rooftops and projections on the continuous facade. Thus, they can be read as independent units belonging to a single system. Exactly as in the center of the city.