Villa Max

©Hertha Hurnaus

Villa Max

©Hertha Hurnaus

Villa Max

©Hertha Hurnaus

Villa Max

©Hertha Hurnaus

Villa Max

©Hertha Hurnaus

Villa Max

©Hertha Hurnaus

Villa Max

©Hertha Hurnaus

Villa Max

Villa Max

Villa Max

Villa Max

Villa Max

Villa Max

Villa Max

Villa Max

Villa Max

Villa Max

Location: Perchtoldsdorf, Vienna, Austria

Architect: Caramel architektInnen

Material: wood & Glass

Design date: 2021

Completion date: 2023

Site area: 826m2

Built area: 470m2

Studio: Caramel architektInnen zt gmbh

Photographer: Hertha Hurnaus

Story:

Text provided by the architect:

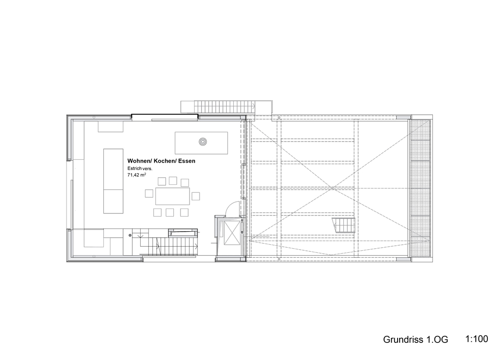
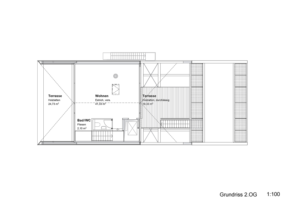
In order to escape the hustle and bustle of vienna’s city center, a family of four wants a home in the countryside that will also house a spacious artist’s studio. You can find the right hillside property in perchtoldsdorf. The nature of the property literally invites you to stack different living environments. The 3 meter high artist’s studio is being built in the basement, partly nestled into the slope and partly on the same level as the garden. The covered terrace is also used as an outdoor studio. Above, at street level, you can access the master bedroom and the two boys’ children’s rooms, including their bathrooms. The green of the crowns of the surrounding trees is everywhere you can touch. the entrance area and the garage with an inconspicuous garage door in the facade are also located on this level towards the street. The open internal staircase, from the studio to the attic, is accompanied by a glazed elevator. On the upper floor is the dining, kitchen and living area, which opens onto a large, partially covered terrace on the garden side with a view towards the perchtoldsdorfer heide. An outside staircase leads directly to the garden with pool and guest house. the kitchen area faces the street, with a hidden dirty kitchen and a breakfast bar. The attic, designed as a multimedia, study and music room, offers partially covered terraces facing the street and garden.
On the side facing the garden there is a floor-level “hammock” instead of a railing to the lower terrace. The view wanders over the trees and on to the vineyards all the way to vienna. A reminiscence of the old attic apartment from the vienna days. From here you can also reach the lower terrace via an outside staircase and from there directly into the garden. The vertically connected open areas are designed like a kind of scaffolding made of stairs, railings, openings and partial roofs and enable the residents to gradually and personally acquire the outside world. It can be used with various add-ons as desired, such as swings, trellises, screens or hammocks. On the street side, the house is based on the typical local neighboring houses with gable roofs, but reinterprets the roof as a partially covered outdoor space. There, the large single-family home appears reserved and blends in with the tectonics of the street fronts of the neighboring buildings. Towards the garden, the house grows impressively out of the slope and opens up to the landscape. The basement, which is half underground, and the garage are made of reinforced concrete, the floors above are made of wood, wall and ceiling elements made of cross-laminated timber, combined with partially visible steel construction. The use of untreated wood as a building material, including for parts of the interior and the rear-ventilated, pre-grayed wooden facade, underlines the sustainable and efficient concept of the building. house max is almost self-sufficient thanks to integrated pv elements on the entire roof (sun skin, eternit with battery storage), deep drillings and a heat pump.

 

 

 

 

 

Related architects: