Villa Monja
Location: Ljuta, Kotor, Montenegro
Architect:
Enforma D.O.O
Client: private
Material: Wood
Design date: 2014
Completion date: 2015
Site area: 686m2
Built area: 358m2
Architects: Nikola Novakovic, Radovan Radoman
Architecture Studio: Enforma d.o.o
Photographer: Relja Ivanic
Story:
Text provided by the architects:
Reconstruction of a villa, in Ljuta
This traditional old house is located in a settlement called Ljuta, which is the historic part of Dobrota, in the Bay of Kotor. The settlement was established on the coast, while its development in the period of XVII-XIX century points to the complex genesis and mutual relations of smaller architectural ensembles and estates.
In addition to the minimum intervention on the exterior of this traditional building with baroque elements, made in accordance with conservation requirements, the house is transformed into a luxurious residential building.
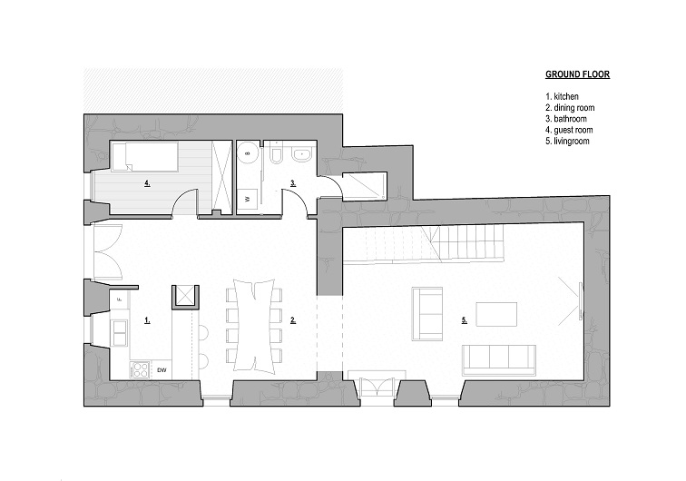
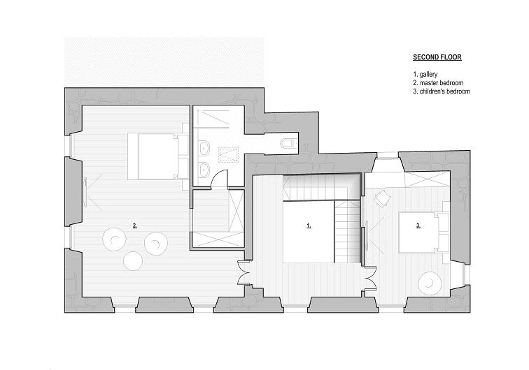
The treatment of the interior space of this stone house is characterized by division into three vertical zones:
1. night zone
2. central gallery space
3. fireplace room and children's room
To make this division clearer we aimed to free the central area of redundant elements, forming a unique atrium space which spans the whole height of the building dividing the left and right side. The dematerialization of the communication paths, that we have archived by introducing a glass bridge and staircase, has contributed to the overall concept. Such stratification highlighted the named entities but also created a unique interior space that visually connects all three floors.
The right side of the building is functionally more complex than the bedroom block because it is composed on the first floor of the fireplace hall divided by a glass partition, as well as a children's bedroom. This bedroom is lined with wooden planks and situated at the top of the house, fully isolated, with a single window that overlooks the atrium so it resembles a tree house.
Playing with modern and traditional elements and materials, introducing a traditional stone staircase on the ground floor, wrought iron elements, glass railing, and communications, steel, exposed stone walls... contributed to both keeping the existing ''spirit'' of an old stone house and fulfilling all aesthetic and functional needs of a modern lifestyle.
Related architects: