Villa No.1090

Villa No.1090

Villa No.1090

Villa No.1090

Villa No.1090

Villa No.1090

Villa No.1090

Villa No.1090

Villa No.1090

Villa No.1090

Villa No.1090

Villa No.1090

Villa No.1090

Villa No.1090

Villa No.1090

Villa No.1090

Villa No.1090

Villa No.1090

Villa No.1090

Location: Tavoosieh Town,Kordan bridge,Karaj to Ghazvin highway

Architect: Saeed Mirmohamad Sadeghi & Ladan Zarei

Material: Concrete

Completion date: 2016

Project Manager:: A.zolghadr

cooperators: N.Misaghi, B.Zarei, N.Rouhipoor, S.Behmanesh, F.Mohammadi, A.Samadi,S.Jalili, E.Mohajer, S.Hosseinkhani

Structure: N.Misaghi, A.Zolghadr

Photographs: Ali Daghigh

Story:

One hour drive from Iran’s capital, Tehran, towards west, Villa No. 1090 sits on a 1200 square meter, relatively flat, rectangular shape site in Kordan region. The villa blocks out views of its east and west adjacent neighbors by using narrow vertical windows carried with wooden fins and focuses on the south side overlooking pool deck and flooding the interior with natural light through the 3 storey high glass and curtain wall system facing south.

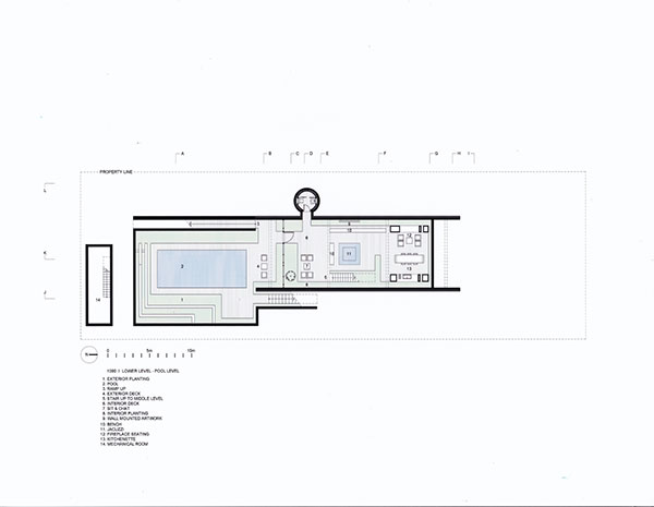
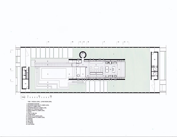
The villa consists of 3 floating levels. The lower level is a floating deck over a planted floor and the middle and upper levels are suspended by four structural picture frames from an insulated, cast-in-place, exposed concrete shell.

One of the key moments of the journey in this house is the lower level which is an extension of the pool deck, designed to be used as a covered patio for the front yard.

The middle level, which consists of main living room, kitchen and dining space, provides different experience of the front yard through the triple height void space overlooking Sit and Chat area in the lower level.

As one ascends to the upper level, which is mainly composed of bedrooms and the upper living room, multiple void spaces allow the light travel between different levels of the villa and also provide a visual and physical link.

The material palette for the interior of the villa is consistent with materials used in the exterior. Exposed concrete, wood, and plants are the main elements of the material palette which have been used throughout the house in order to create a sense of rhythm and harmony between indoor and outdoor spaces.