Villa No.30

© Ali Daghigh

Villa No.30

© Ali Daghigh

Villa No.30

© Ali Daghigh

Villa No.30

© Ali Daghigh

Villa No.30

© Ali Daghigh

Villa No.30

© Ali Daghigh

Villa No.30

© Ali Daghigh

Villa No.30

© Ali Daghigh

Villa No.30

© Ali Daghigh

Villa No.30

© Ali Daghigh

Villa No.30

© Ali Daghigh

Villa No.30

© Ali Daghigh

Villa No.30

© Ali Daghigh

Villa No.30

© Ali Daghigh

Villa No.30

© Ali Daghigh

Villa No.30

© Ali Daghigh

Villa No.30

© Ali Daghigh

Villa No.30

© Ali Daghigh

Villa No.30

© Ali Daghigh

Villa No.30

Villa No.30

Villa No.30

Villa No.30

Villa No.30

Villa No.30

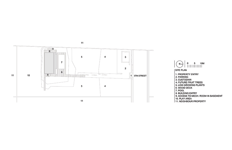
Location: Hamidieh, Alborz Province, Iran

Client: Private

Material: Wood

Design date: 2013

Completion date: 2014

Site area: 2800m2

Built area: 180m2

Architect: Saeed Mirmohammad Sadeghi, Ladan Zarei

Design Associates: Banafshe Zarei

CAD Drafting & Rendering: Nastaran Rouhipour

Construction Executive Manager: Abas Zolghadr

Executive Team: Amir Hosein Sedighi, Babak Noferesti, Farhang Mohamadi, Saeed Kamrish, Mohamadreza Mahmod Kalayeh, Shadman Mohamadi

Structural Engineers: Padir Consulting Engineers, Abas Zolghadr, Nasim Misaghi

Mechanical Engineers: Aref Samadi & Assosiates

Electrical Engineers: Ali Chahardouli

Landscape consultants and executive Team: Ebrahim Mohajer, Sara Hoseinkhani

Heating, Cooling, and Ventilation System: Damon Service

Photographer: Ali Daghigh

Story:

Text provided by the architects:

Not too far away from Iran’s capital, Tehran, Villa No. 30 is a family getaway house designed not to exceed 80 square meter foot print in order to meet the applicable zoning by-laws and the project budget. The design intent is to emphasize the very fundamental essence of architecture: Providing shelter. As an essential element in provision of shelter, the roof of the villa , is designed to perform a multifunctional building skin which, while shelters a glass structure, facing south, it provides sun shade, and facing north, it is sloped to harvest the rainwater towards the exterior planters. The double skin façade facing south also allows for natural exterior ventilation. The glass skin of the building, is made of back painted glass panels which create a sense of invisible building skin and mirror the adjacent plants and trees.

 

The material palette, using wood and mirrored glass panels which either frame the adjacent green spaces or mirror them, is consistent throughout the interior and exterior of the villa, eliminating the border between the outdoor and indoor spaces and extending the experience of architectural space beyond the perimeter of the 80 square meter ground floor.