Villa on an Island

© Ivar Kvaal

Villa on an Island

© Ivar Kvaal

Villa on an Island

© Ivar Kvaal

Villa on an Island

© Ivar Kvaal

Villa on an Island

© Ivar Kvaal

Villa on an Island

© Ivar Kvaal

Villa on an Island

© Ivar Kvaal

Villa on an Island

© Ivar Kvaal

Villa on an Island

© Ivar Kvaal

Villa on an Island

© Ivar Kvaal

Villa on an Island

© Ivar Kvaal

Villa on an Island

© Ivar Kvaal

Villa on an Island

© Ivar Kvaal

Villa on an Island

Plan

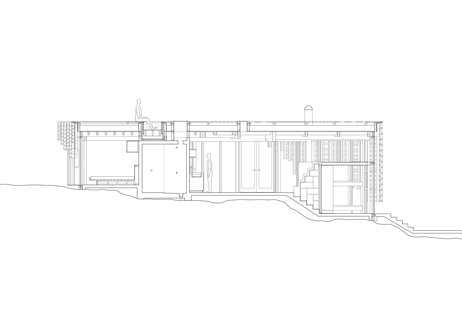
Villa on an Island

Section

Villa on an Island

Site Plan

Villa on an Island

Structure diagram

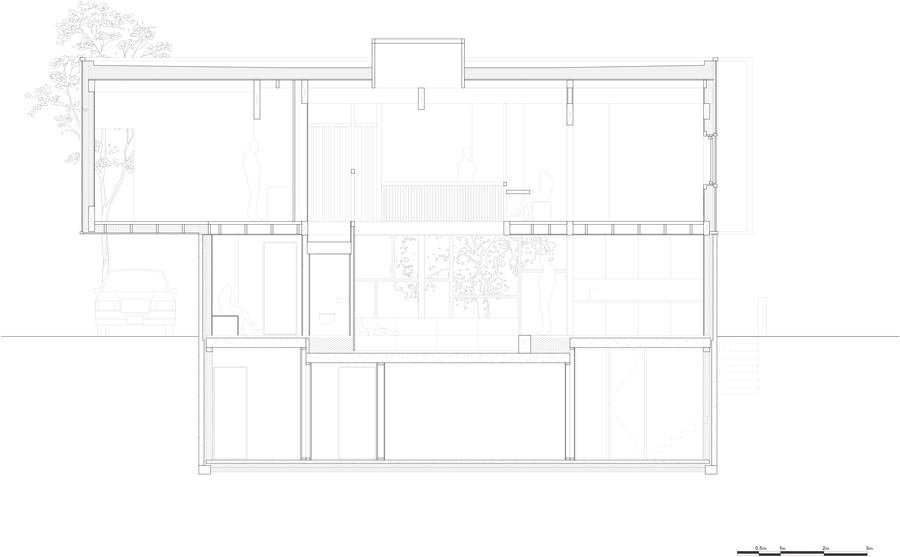
Villa on an Island

Section

Villa on an Island

Location: Skåtøy Island, Norwey

Architect: AtelierOslo

Client: private

Material: Wood

Completion date: 2018

Site area: 700m2

Built area: 70m2

Consultants: Bohlinger + Grohman Ingenieure, Norconsult

Contractor: Admar AS

Photographer: Ivar Kvaal

Story:

Text provided by the architects:

The small house is situated on an island on the south coast of Norway. The site is characterized by smooth and curved rocks that go down towards the ocean. The house is built for two artists that wanted a house for contemplation and working. 

 

You enter the project from the backside walking along a small hill. The entrance is a stair that goes through the building taking you to the entrance on the front side. The entrance sequence marks a transition and prepares you for life on the Island.

 

The topography of the site was carefully measured to integrate the rocks into the project. Concrete floors at different levels connect to the main levels of the topography and create a variety of different outdoor spaces. The concrete floors and stairs dissolve the division of inside and outside. The interior becomes part of the landscape and walking in and around the cabin gives a unique experience, where the different qualities from the site become part of the architecture. From the concrete floors kitchen, bathroom and fireplace grow up to serve the inhabitants like furniture that sits on the rock.

 

A prefabricated timber structure is placed on the concrete floors and at last, a light wood structure covers the cabin to filter the light and direct the views. The wood structure has a depth that creates a play of shadows throughout the day and a calm atmosphere resembling the feeling of sitting under a tree.

 

A small annex creates a fence towards the neighbor building and another sheltered outdoor space.  

 

All exterior wood is Kebony which is a special heat-treated wood that will turn grey and require no maintenance.

Related architects: