Villa Sah

@Thomas Jantscher

Villa Sah

@Thomas Jantscher

Villa Sah

@Thomas Jantscher

Villa Sah

@Thomas Jantscher

Villa Sah

@Thomas Jantscher

Villa Sah

@Thomas Jantscher

Villa Sah

@Thomas Jantscher

Villa Sah

Site Plan

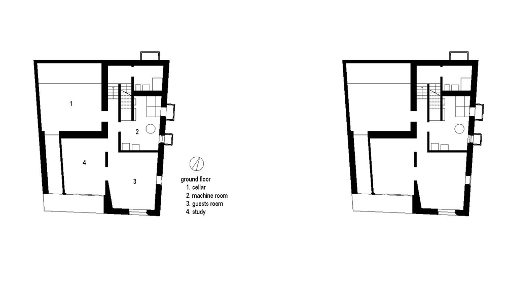
Villa Sah

Ground Floor Plan

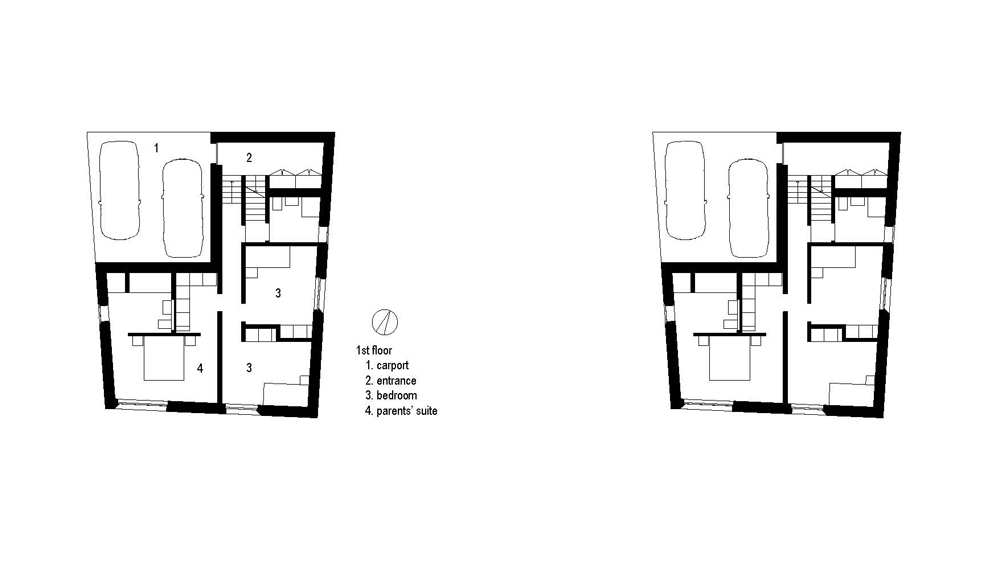
Villa Sah

First Floor plan

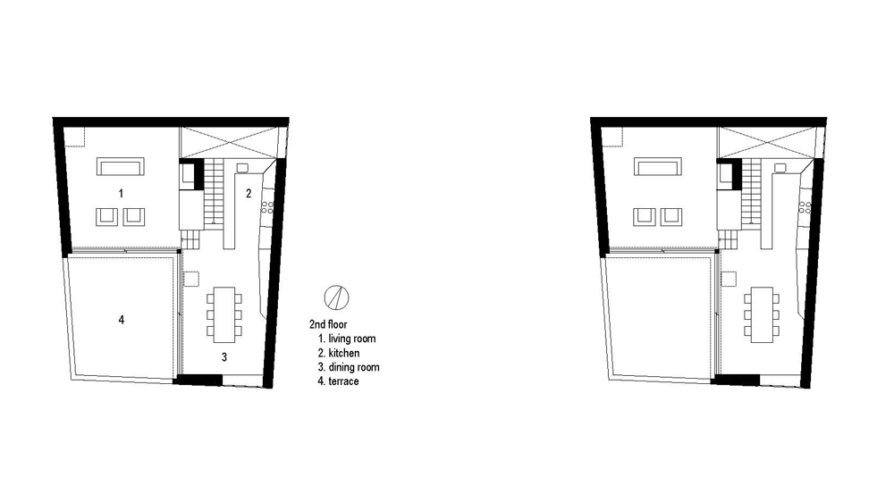
Villa Sah

Second Floor Plan

Villa Sah

Section

Villa Sah

Section

Villa Sah

Location: Neuchâtel, Switzerland

Architect: Andrea Pelati

Material: Concrete

Design date: 2012

Completion date: 2014

Built area: 212m2

Architects: Andrea Pelati Architecte

Civil Engineer: AJS

Thermal Engineer: Exotherm

Photographer: Thomas Jantscher

Story:

The villa is located near the center of Neuchâtel, Switzerland. It settles on a small plot surrounded by quite massive houses. Therefore, the house is concentrated in a compact volume, seeking openings and light vertically. It develops over three levels, the highest and brightest of which are hosted the living room, dining room, kitchen, and terrace.

In respect to the occupants’ privacy, the North façade displays a shield to the street whereas the South façade opens on to beautiful framed views of the city, lake, and Alps. The layout was designed to allow light to flow in through all three levels, thanks to high ceilings, overlapping spaces, and skylights. Sleeping areas are set on the intermediate level focusing on intimacy, whereas the utility rooms lay on the ground floor, taking benefit of direct access to the garden.

Related architects: