Photographer: Richard Riesenfeld, Lie Øyen arkitekter
Story:
Text provided by the architects:
The villa is situated on the hillside surrounding Oslo, on the top of Vettakollen, with a great view over the city and the fjord. The project is a total reconstruction of a house from the 1950s and is one of the first projects realized by the office.
Originally, the house was rather enclosed, with modestly sized windows, - a traditionally painted wooden box with a pitched roof. The client´s wish for a modern retreat for a large family that could welcome friends and offers a variety of activities, zones of relaxation and different kinds of views, developed throughout the process of design and construction.
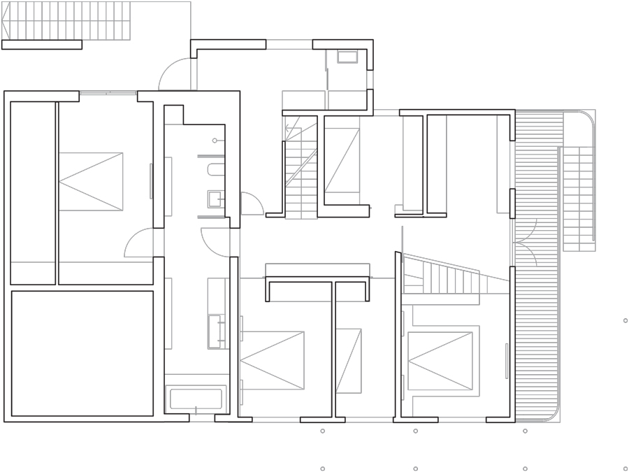
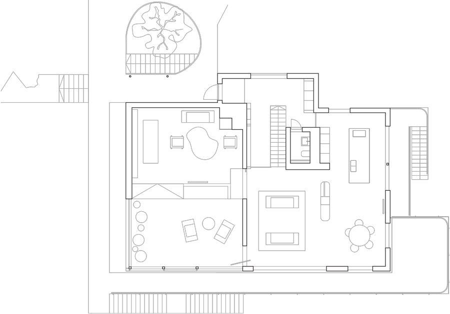
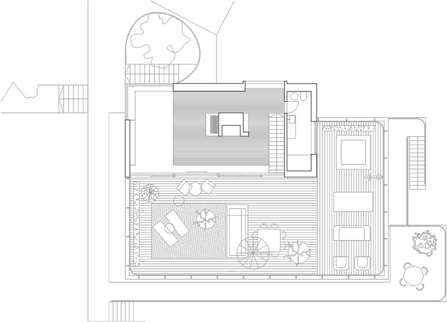
The new house is situated in the steep terrain as before, but with a new concrete terrace and carport connecting it to the road Stjerneveien. Four floors separate the different programs of the family´s daily life, and each floor has its own orientation: The ground floor serves as a spa area, with a sauna, showers, and tubs, and is connected to the pool terrace to the south. The first floor contains the bedrooms. The second floor has the entrance hall, with a large kitchen and dining area, as well as the main living room. The top floor contains a study with a fireplace and is opening up towards the roof terrace, with a hot tub, outdoor kitchen facilities and sun until late at night in the summer season.
Materials for the construction should be easy to maintain, and light concrete based on cement high on chalk and marble aggregate was chosen for the outdoor structures as well as the polished indoor floors. The cladding is cedar wood which slowly through the years would change from a reddish-gold to a silvery grey. Window frames and panels are all aluminum. Staircases, sliding doors, wooden floors, and fitted furniture were made of bamboo.
As rather inexperienced but highly ambitious architects, many of the solutions, such as holes in the living room concrete floor for green plants, came up as possibilities during a process of enthusiasm and fun mixed with stubborn endurance. The construction site was supervised by Kristoffer Øyen on a nearly day-to-day basis, resulting in close relations between client and constructors, and a focus on detailing and implementation of feasible ideas.