Villa Tootestan

@Ali Daghigh

Villa Tootestan

@Ali Daghigh

Villa Tootestan

@Ali Daghigh

Villa Tootestan

@Ali Daghigh

Villa Tootestan

@Ali Daghigh

Villa Tootestan

@Ali Daghigh

Villa Tootestan

@Ali Daghigh

Villa Tootestan

@Ali Daghigh

Villa Tootestan

@Ali Daghigh

Villa Tootestan

Roof Plan

Villa Tootestan

Location: Banou Sahra, Kordan, Alborz, Iran

Client: Hamid Kouretchian

Material: Concrete & Metal

Design date: 2014

Completion date: 2016

Site area: 2800m2

Built area: 400m2

Architect: Sohrab Rafat

Cooperation in Design: Saloumeh Golbabaei ,Negin Asgari, Mohammad Hossein Shoghi, Vahid Joudi

Structural Engineer: Behrang Bani Adam

Photographer: Ali Daghigh

Story:

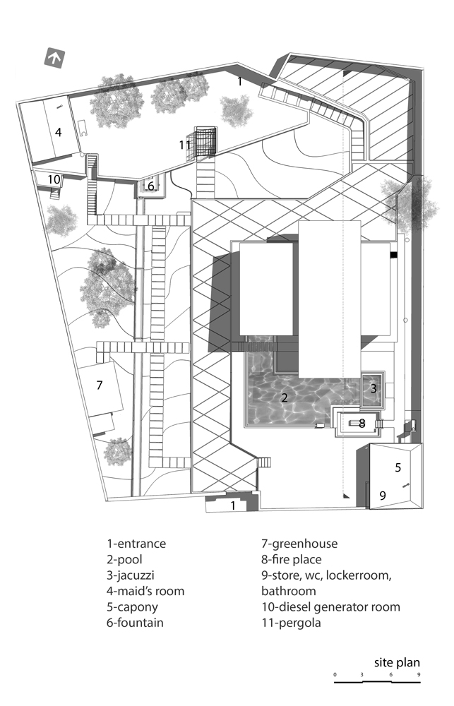
Tootestan Villa in Kordan, with an area of 400 sq.m., is located in a garden, measuring 2800 sq.m. at Banoo Sahra Village of Kordan.

Taking into account various issues like demands of employer, status of land, vision and landscape, local geography and ecology, land’s access, minimum interference in basic design, etc., we have reached to a main idea in designing that resulted in major lines of the villa.

The architects have considered landscape and context as well as establishment of smooth physical corelation between interior and exterior spaces and the project is formed into a cube. The lower cube was aligned according to the site and the upper cube rotated 90 degrees in order to overlook its surroundings and landscape. At the same time, the designer tried to control obtrusive light and provide a level of privacy to prevent neighbor's ecroachment by making no openings in the west and east sides.

afterwards, having in mind the designing process, transparency of northern and southern walls was augmented in order to provide natural lighting (especially penetration of light from south in all spaces) during days, in addition to establishing of fluidity from interior to exterior.

In terms of functionality, the ground floor belongs to the public zone and the first floor to private. Storeroom, laundry, motor room and airconditioning equipments are located and installed in basement. Considering what was requested by the employer, public section of villa is contributed to spaces like pool, Jacuzzi, fireplace and pergola in order to maintain mental & spatial relations between interior and exterior.

Finally, the architects tried to refrain from visual disturbance by designing a minimal sculpture. Also, the metal shell of upper cube would show a different visual quality by the lapse of time. Aesthetic characteristics of the project may be realized through innovation in using materials which creates more contrast and amplifies the suspending sense of metal and lower cube.