Photographer: José Campos, Judy Stoll, Philipp Architekten
Story:
Text provided by the architects:
Between water and crystal
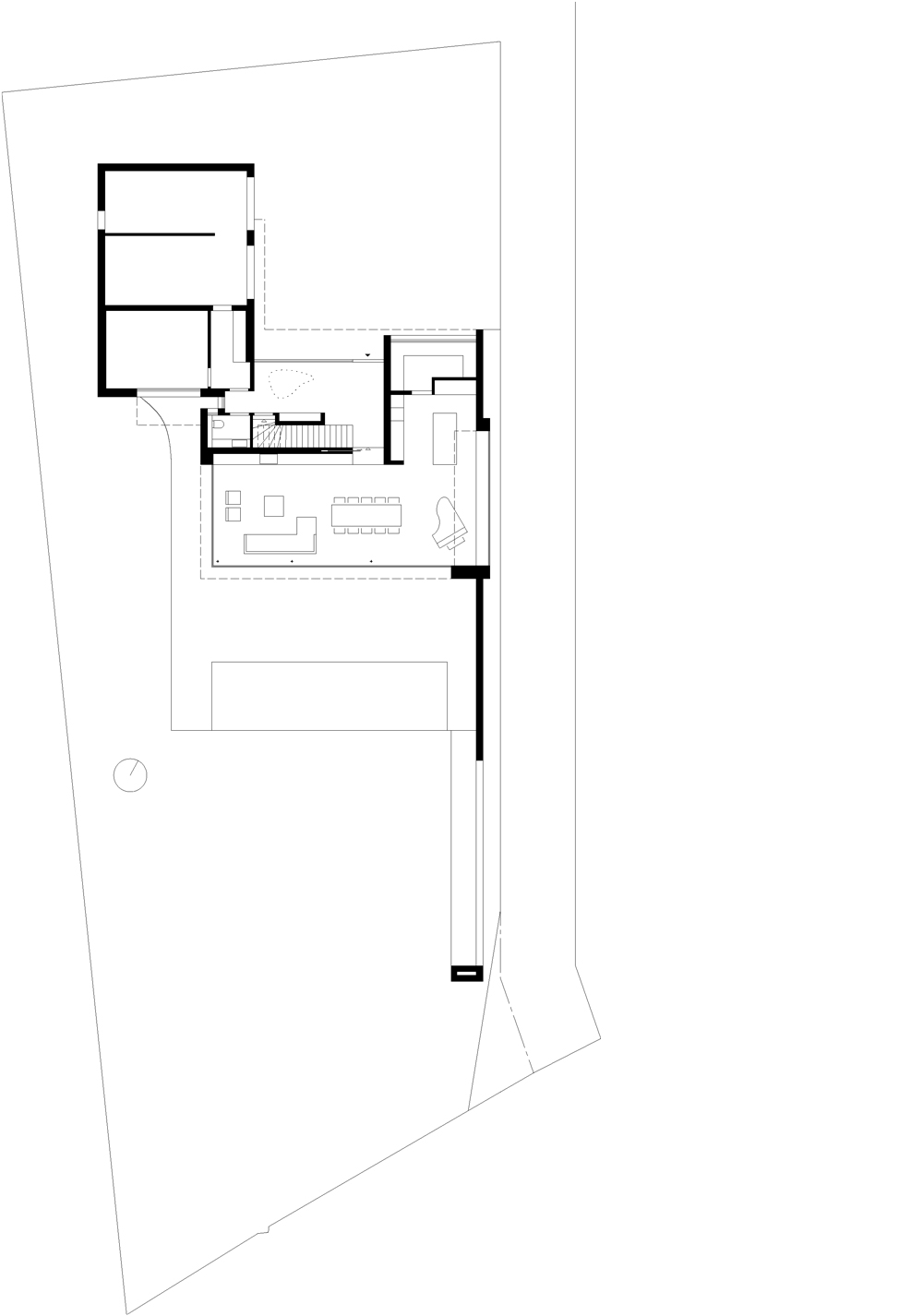
In the ending park-like garden of an old villa above Lake Starnberg, the design of Villa von Osee is a modern yet harmonious counterpoint. A tailor-made home for a family with two adult sons and not to forget their dog. On the rather narrow and elongated hillside property, the architect Anna Philipp designed a building in the form of two L-angles set against each other to create two attractive but functionally very different exterior spaces.
On the one hand, an entrance courtyard is created which, with its wooden slats set on a shadow gap, provides protection from glimpses and at the same time gives all visitors a friendly welcome via the warm wooden surfaces. The water-bound entrance courtyard with its central house tree forms a beautiful transition via its materiality to the park of the stately villa, which from there completes the field of vision.
On the other hand, a sunny garden area forms to the south towards Lake Starnberg and the mountain panorama of the Bavarian Alps that emerges on the horizon. This is bordered and protected by a striking wall running from north to south. A clear, simple wall disc that dissolves into a free bar construction.
The facade cladding with the elegant wooden slats seems to run through the glass entrance element of the foyer. The continuation of the warm wood panelling in the interior of the house creates a flowing transition between inside and outside. Even a first panoramic view makes it clear that the interior architecture of Villa von Osee is characterised by a few selected materials and colours that are used throughout the building in a timeless way. Exposed concrete and wood, black and white, form a perfect background for the first highlight: a luminaire made of Swarovski crystal butterflies designed by Philipp Architekten, which hangs like a modern chandelier under a kidney-shaped black ceiling cut-out in the style of the 1950s.
It was an explicit wish of the client to integrate elements made of Swarovski crystals into the interior design in a modern, contemporary way. Another example can be found in the guest toilet. In addition to the simply black bathroom furniture, the visitor finds himself in front of a sparkling wall surface studded with crystals and the "Glaciarium Rock" luminaire consisting of three robust XL crystals suspended in front of the mirror. Also on the way to the private retreat of the family on the upper floor, which leads over a simple straight staircase of exposed concrete framed by a white and a black wall, the three-part pole lamp "Voltaire", which was also designed by the designer Frederikson Stallard for Swarovski, is astounding.
This project has been published in " Villa Magazine No.12 German Villas Special Issue".