Villa Y

© Marko Huttunen, Tiia Ettala

Villa Y

© Marko Huttunen, Tiia Ettala

Villa Y

© Marko Huttunen, Tiia Ettala

Villa Y

© Marko Huttunen, Tiia Ettala

Villa Y

© Marko Huttunen, Tiia Ettala

Villa Y

© Marko Huttunen, Tiia Ettala

Villa Y

Villa Y

Villa Y

Location: Karjalohja, FINLAND

Architect: Risto Huttunen Santeri Lipasti

Material: wood & Glass

Design date: 2012

Completion date: 2013

Site area: 782m2

Built area: 215m2

Design Team: Risto Huttunen, Essi Wallenius, Satoshi Ohtaki

Electrical design: Forssell Oy

HVAC design: Olli Honkavaara

Photographer: Marko Huttunen, Tiia Ettala

Story:

Text provided by the architects:

The site is in Karjalohja, beside Lake Lohjanjärvi, comprising 3,65 hectares of land with fields, forest and circa 420 meters of shoreline.

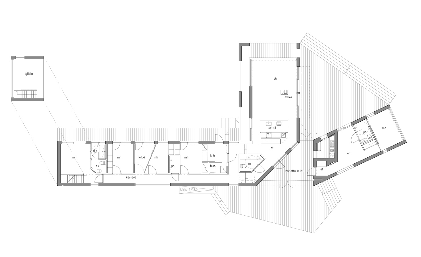
The client’s wish was to build a year-round leisure-time home for three generations. The brief included the main building, a sauna, an open-air kitchen, and garage. The spaces are also designed for entertaining guests.

The basis of the design is in conserving the natural elements of the surroundings and in letting seasonally changing views flood the interiors through the vast expanses of windows. It was also important to maintain unobstructed views of the lake. The slope of the site allowed for the sauna to be situated in a way that does not block the view from the main building.

The sauna building occupies the site of its predecessor by the lake. The spaces include a dressing room, shower room and the sauna space itself. The gables of the elongated building were designed to have sheltered outdoor spaces, including a hot tub. The openness of the gables gives the building a certain lightness and proximity to nature.

The main building is a wooden structure with a color scheme designed to camouflage into the surroundings. The facades and surfaces exposed to the lake are painted in dark tones. The interiors are in light oak, highlighting the surrounding lakeside views.

 

Related architects: