شیت ارائه شده در جایزه ویلا 1400
شیت ارائه شده در جایزه ویلا 1400
موقعیت: ایران، تهران، دماوند، آبسر
معمار: استودیو مادو
مصالح: سبز
تاریخ طراحی: ۱۴۰۰
مساحت زمین: ۱۰۰۰m۲
مساحت ساخت: ۳۰۰m۲
مدیر طرح: مازیار دولت آبادی
طراح ارشد : معین نیک آیین
طراح مسئول : دنیز ابراهیمی آذر
طراح سه بعدی و رندرینگ : سعید یوسفوند
ترسیمات: نورا سام
توضیحات:
متن ارائه شده توسط معماران:
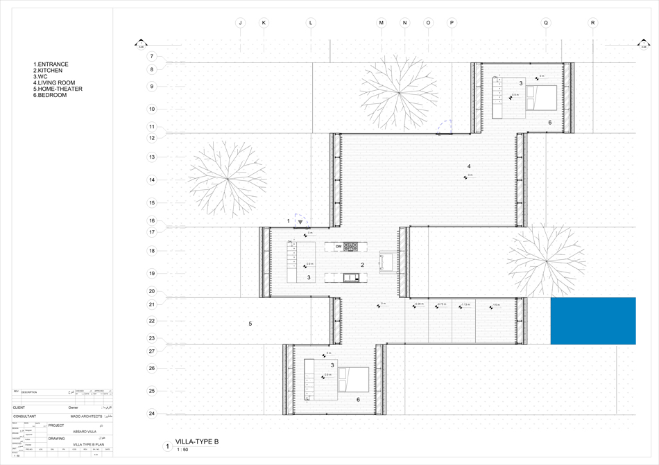
مجموعه ویلایی آبسرد در منطقه آبسرد دماوند طراحی شده است. منطقهای که به تازگی با ساخت و سازهای متعدد مورد آسیب جدی قرار گرفته. ابتدای امر راهبرد برخورد با پروژه در جهت احترام و حفظ زمینه و حداقل دستکاری خط آسمان بود. در ادامه با توجه به منظر زیبای سایت و تصویر کوه دماوند، مفهوم (تصور کلی) پروژه شکل گرفت. ویلا به مثابه منظر با تبدیل زمین به تعدادی لایه و استفاده از تکنیک تا، با پایین رفتن و بالا آمدن در طول سایت فضاهای ویلا شکل گرفت. این مجموعه شامل ۳ ویلا، هر ویلا شامل ۵ نوار تا خورده می باشد. که همگی حالتهای مختلف یک ایده هستند. لایههای تا خورده در فضاهای اصلی پروژه به شکل قاب مثلثی بالا آمدند تا تداعیکننده تصویر کوه باشند و در بخشهای دیگر با پایین رفتن و بالا آمدن در داخل و بیرون پروژه فضاسازی میکنند. کل وجوه بیرونی پروژه با متریال طبیعی و سبز در جهت تداوم منظر پروژه کار شده است.
یکی از پنج پروژهی برندهی جایزه ویلا ۱۴۰۰ با کد شرکت کننده VA-۰۱۶۰
جهت ملاحظه اخبار این دوره از جایزه بزرگ ویلا به بخش اخبار وبسایت رسمی مجله ویلا مراجعه نمایید.
معماران مرتبط: