Daei Jan Villa

Daei Jan Villa

Daei Jan Villa

Daei Jan Villa

Daei Jan Villa

Daei Jan Villa

Daei Jan Villa

Daei Jan Villa

Daei Jan Villa

Daei Jan Villa

Daei Jan Villa

Daei Jan Villa

Daei Jan Villa

Daei Jan Villa

Daei Jan Villa

Daei Jan Villa

Daei Jan Villa

Daei Jan Villa

Daei Jan Villa

Daei Jan Villa

Daei Jan Villa

Daei Jan Villa

Daei Jan Villa

Daei Jan Villa

Daei Jan Villa

ویلای دایی جان

موقعیت: ایران، استان مازندران، نور

معمار: کورش رفیعی

کارفرما: آقای حسین منصف

مصالح: بتن و فلز

تاریخ طراحی: ۱۳۹۸

تاریخ ساخت: ۱۴۰۰

مساحت زمین: ۸۷۰m۲

مساحت ساخت: ۴۴۰m۲

معمار مسئول و طراح: کورش رفیعی

اجرا: مهندس مرتضی اسکندری

مشاور سازه: مهندس نوید امیری

مشاور تأسیسات: گروه مهندسین مشاور سرماساز

گروه طراحی: محسن یزدیان، شفق جاویدی، احسان دهقانی، محمدمهدی صافی، سنا رستگار، پانته‌آ رفیعی، مهسا الهی، مریم سعادت، محمدرضا پیری

ماکت: فب لب

توضیحات:

متن: معمار پروژه

ویرایش: تحریریه مجله ویلا

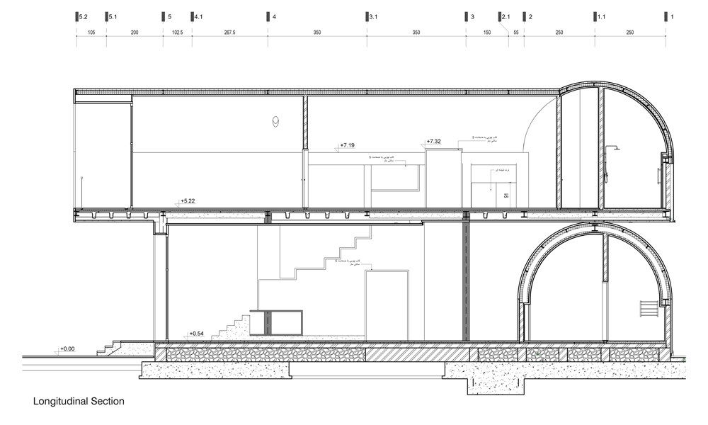
در طراحی این پروژه دو هدف دنبال شده است: یکی در هماهنگی با محیط و منطقه‌ی شمال است و دیگری جنبه‌ی معمارانه دارد و تلاشی در استفاده از امکانات طاق و قوس می‌باشد که معماران قدیمی ایران به‌طورِ فراوانی به آن پرداخته‌اند، اما در جایی متوقف شده است و این حوزه می‌تواند محل مطالعه و طراحی باشد. در راستای هماهنگی با اقلیم شمال، ساختمان به سمت شمال و جنوب جهت‌گیری شده تا از نور و تهویه‌ی مناسب بهره‌مند شود. جهت حرکت هوا از سمت دریا بوده و بازشوهای روبه‌روی هم باعث ایجاد کوران می‌شود و هوای داخل را خنک می‌کند. سمت شرق و غرب تا حد امکان بسته شده و سایه‌روشن حرکت آفتاب بر روی طاق‌ها باعث ایجاد تفاوت دما در طرفین و در‌نتیجه حرکت هوا پیرامون ساختمان می‌شود. مصالح استفاده شده در پوشش سقف‌ها از جنش شیروانی بوده و دیواره‌ها سیمانی است. این ها همان مصالحی است که در این منطقه در راستای مقابله با شرایط سخت بارانی به‌وفور به کار رفته است.

علاوه‌بر موارد یاد شده، این پروژه تلاشی است در راستای استفاده از امکانات تازه‌ای که می‌توان از ساختار طاق و قوس گرفت.

به ‌نظر می‌رسد آنچه با امکانات آن ‌روز ممکن بوده در طراحی و ساخت این طاق‌ها انجام شده و با مواد و مصالح بنایی کار را به سرانجام رسانده‌اند. امروزه با وجود سازه‌های فولادی، بتنی و پیشرفته امکانات جدیدی باز شده که می‌توان دست به تجربه‌گری و آزمایشات دیگری زد و ترکیبات جدید وخلاقانه‌ای را به مجموعه‌ی آثار معماری موجود در طاق‌ها و گنبدها اضافه نمود.

معماری ایرانی به دو شکل طاق و گنبد شکل گرفته است و گنبدهای دوپوش را می‌توان نقطه‌ی اوج در این گونه سازه‌ها به ‌شمار آورد. در پروژه‌ی سرای دایی جان، در ادامه‌ی کارهایی که در ترکیب‌های ساختاری این گنبدها اتفاق افتاده با ترفندهایی مثل برش و چرخاندن گنبدها در جهات عمود برهم و قرار دادن آن‌ها روی‌هم به‌طوری‌که بار هریک را طاق زیرین تحمل می‌کند به ترکیب‌های جدیدی از طاق‌ها دست پیدا می‌کنیم که در نوع خود بدیع است.

در این مدل جدید، بار طاق فوقانی به‌صورت نقطه‌ای بر گرده‌ی طاق زیرین منتقل شده و مجدداً به دیواره‌ها منتقل می‌شود. این نحوه‌ی توزیع بار در ترکیب‌بندی طاق‌های قدیمی نبوده و تنها با استفاده از کارگزاری تیرهای فولادی امکان‌پذیر است. علاوه‌برآن به لحاظ ذهنی انتقال نیرو قابل مشاهده و درک است و این امر معماری را فراتر از جنبه‌های زیباشاسی صِرف می‌برد.

 

 

 

 

 

معماران مرتبط: