Free Roof Summer Villa

Free Roof Summer Villa

Free Roof Summer Villa

Free Roof Summer Villa

Free Roof Summer Villa

Free Roof Summer Villa

Free Roof Summer Villa

Free Roof Summer Villa

Free Roof Summer Villa

Free Roof Summer Villa

Free Roof Summer Villa

Free Roof Summer Villa

Free Roof Summer Villa

Free Roof Summer Villa

Free Roof Summer Villa

Free Roof Summer Villa

Free Roof Summer Villa

Free Roof Summer Villa

Free Roof Summer Villa

Free Roof Summer Villa

Free Roof Summer Villa

Free Roof Summer Villa

Free Roof Summer Villa

Free Roof Summer Villa

شیت ارائه شده در جایزه ویلا 1400

Free Roof Summer Villa

شیت ارائه شده در جایزه ویلا 1400

ویلای تابستانی سقف آزاد

موقعیت: ایران، شهریار

کارفرما: آقای پورجاویدی

مصالح: بتن

تاریخ طراحی: ۱۴۰۰

استودیو: استودیو فضای فَـــــــرا تُـــــــهی

معمار: نیما میرزامحمدی

مدلسازی: رعنا سیاقی

دیاگرام : رعنا سیاقی

رندر : شمیم پروانه

انیمیشن: شمیم پروانه، محمدرضا حیدری

افتخارات: فینالیست جایزه بزرگ ویلا ۱۴۰۰

توضیحات:

متن ارائه شده توسط معماران: 

| سقفِ آزاد | ویلای تابستانی

*اصل ششم: طراحی سقف آزاد!

اینجا همه چیز درباره انعطاف است.

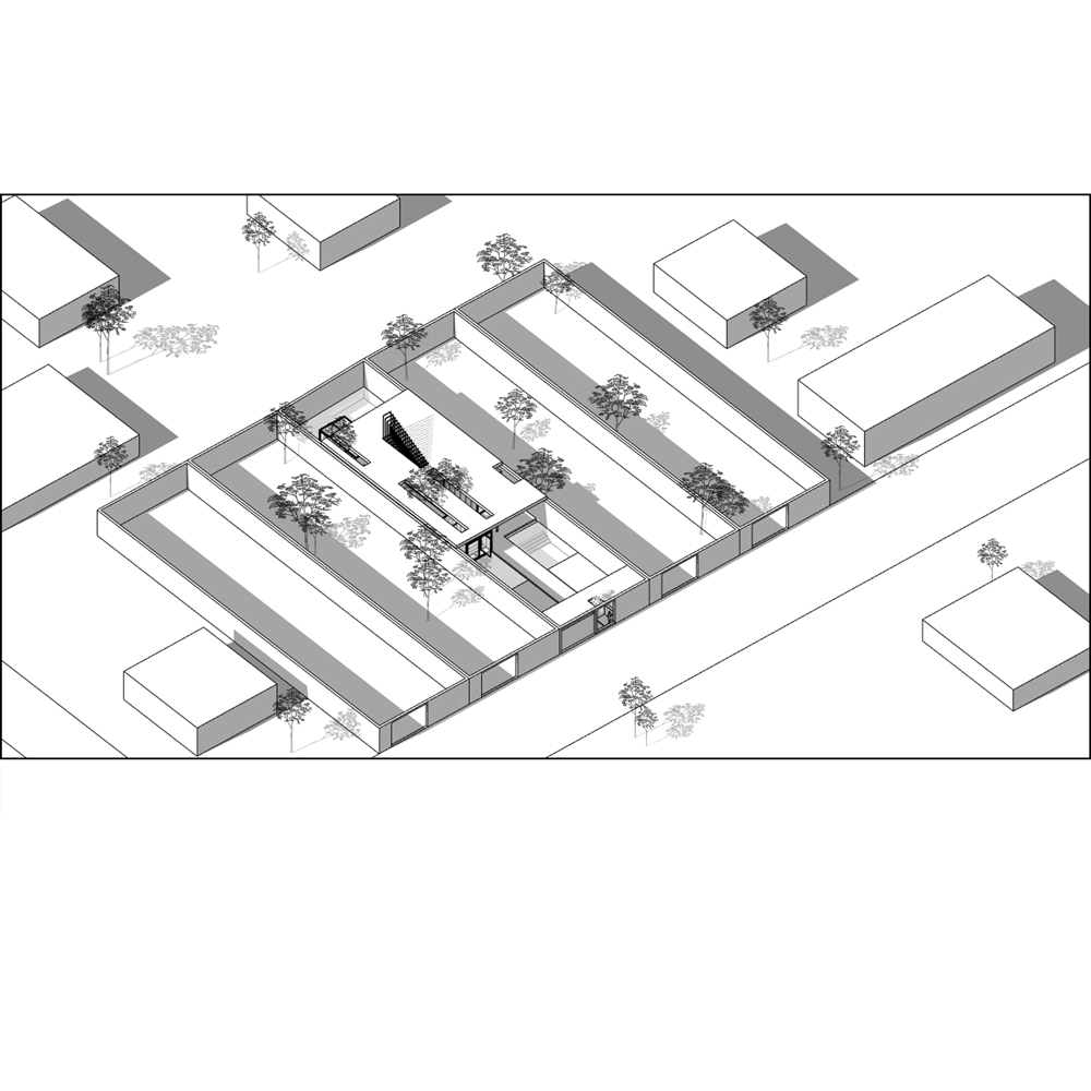
سایت پروژه در منطقه شهریار که در جنوب تهران واقع شده ، قرار گرفته است. باغی ‌کشیده به ابعاد تقریبی ۱۱ در ۵۰ متر .

 سه موضوع کانسپت اصلی را شکل داد:

-اول اینکه طبق قوانین ، بنا می بایست فقط در یک طبقه باشد

-دوم عرض نسبتا کم و طول کشیده زمین بود

-و سوم اینکه کارفرما زیربنای محدودی حدود ۲۰۰ متر را مدنظر داشت با فهرست متنوعی از خواسته ها و فضاها. 

 

حال چگونه می توانستیم حداکثر انعطاف را در معماری آن پدید آوریم؟

چگونه فضاها را به گونه ای طراحی کنیم تا چند عملکردی باشند؟

یک فضا بتواند هم اتاق خواب باشد، هم اتاق بازی و هم آلاچیق.

هم تراس مسقف داشته باشیم و هم تراس باز.

چطور می توانیم مرز میان درون و بیرون را به چالش بکشیم؟

 

نخستین ایده از سقف شروع شد. عرض ۱۱ متر این امکان را می دهد که ستونها در دل دیوارهای طرفین جای گیرد و فضای زیر سقف آزاد باشد.

محدوده جانمایی توده را به گونه ای در نظر گرفتیم که حیاط اصلی در جلو و یک حیاط کوچک هم در انتها قرار گیرد. در این محدوده ۳ درختی که کارفرما دوست داشت حفظ شود در داخل بنا جای می گیرد و سقف را می شکافد.

باز به سقف باز می گردیم، حال که سقف بر دیوارهای طرفین قرار گرفته است و دیوارها هم موازی هستند، پس می تواند حرکت کند و جا بجا شود.

حرکت و جابجایی سقف، انعطاف بزرگی در معماریمان پدید می آورد و مرز درون و بیرون را به چالشی جدی می کشد. اتاقی که مسقف است می تواند وقتی سقف کنار می رود به آلاچیقی باز بدل شود!تراسی که مسقف است نیز می تواند به تراسی باز و مناسب برای آفتاب گرفتن در روز و رصد آسمان در شب مبدل گردد!

با بررسی ها و امکانسنجی های بیشتر دریافتیم که برای اجرایی تر شدن این ایده و کنترل هزینه ها بهتر است محدوده جابجایی سقف را حداکثر ۵ متر در نظر بگیریم.

حال به سراغ زیر سقف می رویم، ۳ درخت داریم، ۳ جعبه را هم به آنها می افزاییم، جعبه هایی که به گونه ای طراحی شده اند که آنها نیز منعطف باشند. جعبه ها سقفی شیشه ای دارند، با دیوارها و پنجره هایی که باز و بسته می شوند و فضایی چند عملکردی را پدید می آورند.

۳ جعبه را به گونه ای جانمایی می کنیم که مسیری به عرض ۲/۵ متر از ورودی باغ تا حیاط انتهایی امتداد یابد. ورودی جعبه ها از کناره هاست و هر یک سرویس و امکانات مستقل دارد.

تمام حیاط پشتی و بخشی از حیاط جلویی را هم آب می گزاریم تا هم هوای گرم تابستانی را تلطیف کند و هم با انعکاسهایش بر وسعت دید بیفزاید.

حال به فضاهای خالی میان جعبه ها می پردازیم. آشپزخانه ، ناهارخوری ، سرویس بهداشتی مشترک، فضای بیلیارد و هال   میانی در مرکز قرار گرفته اند.

تراس حیاط پشتی هم دو کاربرد دارد، یکی سینما و دیگری رصد آسمان. در اینجا به گونه ای اختلاف سطح ایجاد کردیم تا ۳ ردیف صندلی سینمایی در شیب و رو به دیوار انتهایی حیاط پشتی قرار گیرد. تصویر ویدئو پروژکتور روی دیوار حیاط پشتی می افتد و حیاط مسقف میان تماشاگر و تصویر قرار می گیرد. تلسکوپ نیز روی سکویی قرار گرفته که با حرکت سقف امکان رصد ۳۶۰ درجه را فراهم می آورد.

 

و بالاخره پله! درخت انتهایی ارتفاع زیادی دارد، این ما را به این فکر انداخت تا در بام از سایه زیر آن بهره ببریم. به ۳ شکافی که در سقف برای درختها ایجاد کرده بودیم، یک شکاف دیگر افزودیم تا پله ای سبک و فلزی را در آن جای دهیم. این پله که به سقف متصل است و با آن حرکت می کند هم حالات متنوعی را در معماری داخلی بنا پدید می آورد و ۳ سکو در ۳ حالت برای استفاده از آن مهیا شده است.

‌در لبه دو سوی سقف، پرده ای قرار داده ایم که به تناسب جابجایی سقف و عملکرد فضاها می تواند حائلی نرم و سبک میان درون و بیرون باشد. 

 

 

پروژه‌ی منتخب لیست کوتاه جایزه ویلا ۱۴۰۰ با کد شرکت کننده  VA-۰۴۹۸ 

جهت ملاحظه اخبار این دوره از جایزه بزرگ ویلا به بخش اخبار وبسایت رسمی مجله ویلا مراجعه نمایید.

جایزه ویلا ۱۴۰۰