شیت ارائه شده در جایزه ویلا 1400
شیت ارائه شده در جایزه ویلا 1400
موقعیت: ایران، تهران، اوشان
معمار: استودیو مادو
کارفرما: شخصی
مصالح: بتن
تاریخ طراحی: ۱۴۰۰
مساحت زمین: ۱۲۰۰۰m۲
مساحت ساخت: ۳۰۰۰m۲
مدیر طرح : مازیار دولت آبادی
طراح ارشد : معین نیک آیین
طراح مسئول : تینا شاه نظری
طراح سه بعدی و رندرینگ : سعید یوسفوند
ترسیمات: الهام خزانهدار، سحر صمدی، سونا تقیپور
ماکت: تینا شاه نظری، نورا سام
توضیحات:
متن ارائه شده توسط معماران:
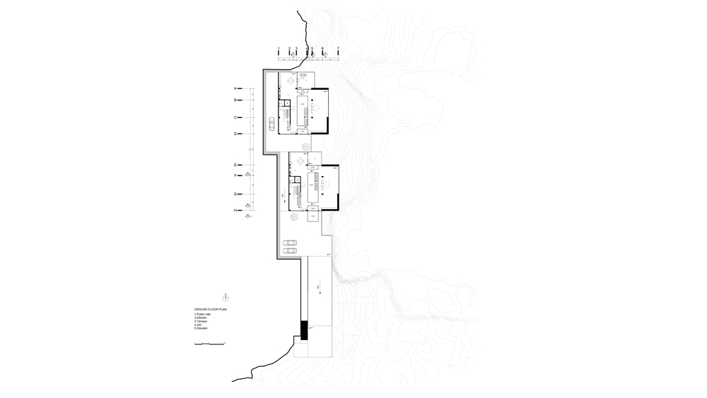
موضوع این پروژه طراحی سه ویلا در زمینی ۱۲۰۰۰ هزار مترمربعی واقع در کوههای اوشان است. این سایت از شرق همجوار زمین فوتبال و مشرف به رودخانهی جاجرود، از غرب محدود به کوه و از شمال و جنوب نیز همسایگی ندارد. میل به تضادی از دیده شدن در کنار دیده نشدن از خواستههای کارفرما بود. فاز مطالعاتی پروژه، در دو بخش بستر جغرافیایی (خاکشناسی) و گونهشناسی مورد بررسی قرار گرفت که نتیجتاً دستیابی به دوگانهی ساختن و نساختن بهانهای را برای فاز بعدی پروژه ایجاد کرد. بدین ترتیب محدودهی ناامن جنوبی(لایهی سفید) با کمترین بارگذاری به دسترسیها و محدودهی امن شمالی (لایهی سیاه) با هدف همسو بودن با توپوگرافی و حداقل خاکبرداری ممکن، به ساختن اختصاص پیدا کرد. در این راستا، استفاده از محدودیتها در جهت اهداف پروژه و تکثیر شدن واحدها با هدف ساختاری مجزا و اختصاص امکانات مستقل ایجاد شد.
برنامههای کلی پروژه در سه لایه محوطه، خوشههای آشکار و لایه پلهای پنهان اتفاق میافتد. لایه محوطه که به شکل رمپهایی در سه تراز عمومی، هال خصوصی و راهروی سوییتهای مستقل به تراز آخر منتهی و متصل میشوند.
خوشهها هم دانههایی بارور هستند به شکل مکعبهایی با هم درگیرکه به برنامههای محصور پروژه جواب میدهند، این واحدها در جهت شمال و جنوب باز و آزاد و در وجوه دیگر محدود و بسته شدهاند که بر روی لایهی پلهای پنهان زیر رشد و گسترش مییابند.
لایهی پلهای پنهان به شکل پلتفرمی عمومی متأثر از توپوگرافیست که به حیاطهایی نیمه محصور منتهی میشود. این حیاطها به صورت طیفی در هر تراز اتفاق میافتند، طیفی از مرزهایی بین تاریکی و روشنی، مرز بین بنا نهادن و خالی گذاشتن، مرز بین آشکار ساختن و پنهان کردن، مرز بین دو ویلا و در گسترش آن چندین ویلا. در واقع مرزها لایههای از پروژه هستند که درون پروژه به جریان افتادند و سعی در یرقراری دیالوگی با بستر خود دارند.
پروژهی منتخب لیست کوتاه جایزه ویلا ۱۴۰۰ با کد شرکت کننده VA-۰۱۵۹
جهت ملاحظه اخبار این دوره از جایزه بزرگ ویلا به بخش اخبار وبسایت رسمی مجله ویلا مراجعه نمایید.
معماران مرتبط: