تمام صفحه ↗ خروج از تمام صفحه ↙
موقعیت: ایتالیا، آلپینو
معمار: آتلیه معماری پیتر پیچلر
کارفرما: شخصی
مصالح: بتن و شیشه
تاریخ طراحی: ۱۳۹۵
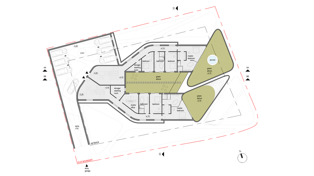
مساحت ساخت: ۲۰۰m۲
معمار مسئول : پیتر پیچلر، سیلیوانا اوردینز
گروه طراحی: پیتر پیچلر، جیانلویجی د آلویسیو، دانیله کلمباتی
معماران مرتبط: