Villa G C F Møller

© فجورگن ترو

Villa G C F Møller

© فجورگن ترو

Villa G C F Møller

© فجورگن ترو

Villa G C F Møller

© فجورگن ترو

Villa G C F Møller

© فجورگن ترو

Villa G C F Møller

Villa G C F Møller

ویلا جی سی اف مولر

موقعیت: دانمارک، اسکاندربورگ

معمار: دفتر معماری سی.اف.مولر

کارفرما: محرمانه

مصالح: آجر

تاریخ طراحی: ۱۳۸۸

تاریخ ساخت: ۱۳۹۱

مساحت ساخت: ۶۲۰m۲

معمار: سی . اف. مولر

طراحی منظر: دفتر معماری سی.اف.مولر

مهندس : ویگو مندسن

اجرا: بی آر دی آر. تیو ای/اس

عکاس: جورگن ترو

جوایز: برنده جایزه شهرداری اکندربورگ سال ۲۰۱۳

توضیحات:

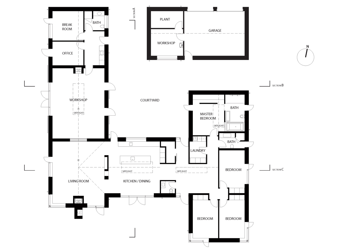
ویلا جی در منطقه‌ی محافظت شده‌ای قرار دارد که با جنگل و دشت احاطه شده و در فاصله چند صدمتری از رودخانه‌، از چهار سمت به زمین‌های کوچک زراعی می‌رسد. ساختمان جدید تفسیری از شمایل یک کلبه‌ی کاملاً کلاسیکی است که در عین حفظ فرم اصلی خود، وجه مدرن را با عملکردهای مختلف به هر جبهه‌ی آن وارد کردیم که شامل بخش‌‌های مسکونی، تجاری و گاراژ می‌شود.  این وجوه با احترام نسبت به حریم یکدیگر، از حد خود فراتر رفته‌ و جابجا شده‌اند. خطوط تشکیل دهنده‌ی حجم ساختمان بسیار دقیق و ظریف هستند.

هدف بر این است که ساختمان‌های جدید به طور طبیعی سازگار با محیط‌های حساس و محافظت شده سبز شوند. ویلا از آجرهای بافت‌دار در رنگ‌های خاکستری خاموش و سقف تخته سنگ ساخته شده است، یک ماده ای است که در حیاط و تراس تزیین می شود، و این ایده این بود که وحشی را به سمت پای ساختمان بگذارد، به طوری که برای مثال باغ باغبانی را می توان به عنوان یک بخش مجتمع از زمین های اطراف آن درک کرد.

فضای داخلی ویلا با فضاهای بلند و آزاد، پنجره های سقفی و پنجره های بزرگ، تعریف می­شود که اجازه می­دهد مقدار زیادی از نور روز را به در خود داشته فراخواند، و مناظر زیبایی از طبیعت بیرون را به گونه­ای قاب کرده که گویی نقاشی­هایی از زندگی واقعی است. ویلا خانه­ای با مصرف کم انرژی است که بر گرمای زمین متکی است.

عناصر مجسمه مانند، بین اتاق نشیمن و آشپزخانه / منطقه ناهار خوری همچون یک تقسیم کننده عمل می­کنند و اجازه می دهد تا دید در سراسر ساختمان و همینطور فراتر از حومه شهر گسترش یابد. بخش تجاری این ملک همچنین شامل یک تفسیر مدرن، روشن و اسکاندیناویایی از یک سالن شکار کلاسیک، با شومینه آجری در مرکز بنا است.

 

برگردان به قلم هانیه فرج­زاده

تاریخ ۳ دی ماه ۱۳۹۷

معماران مرتبط: